Dr. W. Kokstrjitte 25 – Stiens
Kenmerken
Status
Vraagprijs
Oplevering
Energielabel
Bouwjaar
Inhoud
Woonoppervlakte
Aantal kamers
Aantal slaapkamers
Aantal badkamers
Perceeloppervlakte
Buitenruimte
Ligging tuin
Oppervlakte
Garage
Omschrijving
Deze tussenwoning in een rustige en kindvriendelijke woonwijk in Stiens is op zoek naar nieuwe bewoners! De woning is voorzien van kunststof kozijnen, wat zorgt voor minder onderhoud én een moderne uitstraling en heeft een praktische indeling met een lichte woonkamer, een functionele keuken en totaal 4 slaapkamers op de bovenverdieping. Met scholen, winkels en openbaar vervoer op korte afstand is dit een ideale woning voor starters of jonge gezinnen die op zoek zijn naar een betaalbare en gezellige plek om hun eigen thuis van te maken.
Begane grond:
Binnenkomst via de entree in de hal met toegang tot het toilet, trapopgang naar de 1e verdieping en een trapkast. De gezellige lichte woonkamer is voorzien van een deur naar de achtertuin. De dichte keuken is functioneel en voorzien van een 4 pits gaskookplaat, afzuigkap, vaatwasser, oven en deur naar de achtertuin.
1e verdieping:
Vanaf de overloop zijn de 3 slaapkamers bereikbaar met kunststof draaikiepramen en de badkamer met ligbad/douche, wastafel en radiator.
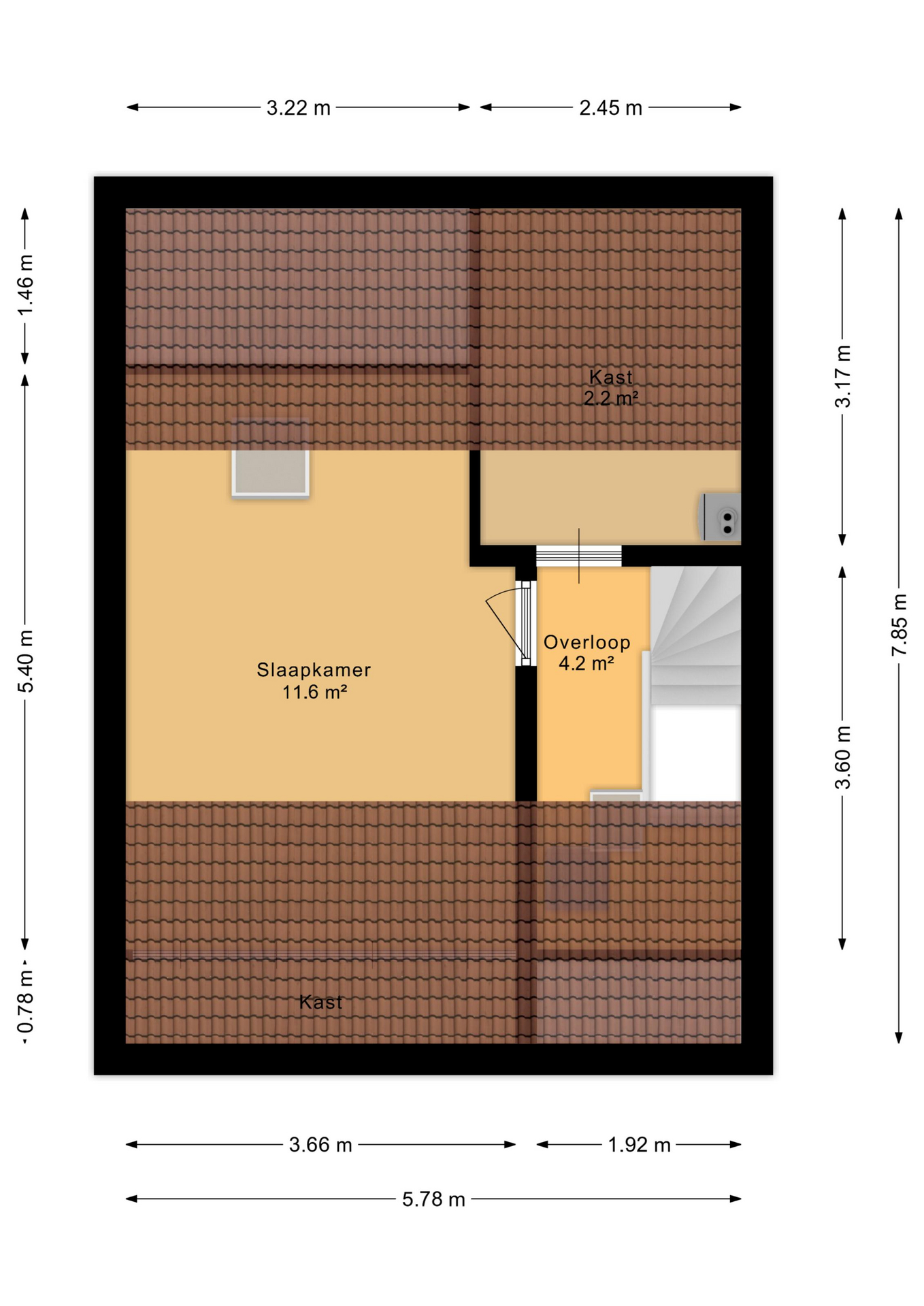
2e verdieping:
Via een vaste trap kom je op de overloop met extra opbergruimte met CV opstelling geeft toegang tot een ruime 4e slaapkamer met dakraam en knieschotten.
Tuin:
De achtertuin met achterom is praktisch ingedeeld met een combinatie van terrasbestrating en groen, beschikt over een eenvoudige stenen berging met wasmachine aansluiting en is ideaal voor extra opbergruimte. Dankzij de ligging op het noordoosten geniet je hier optimaal van de ochtend- en middagzon. De grote voortuin is met veel groen aangelegd en in de directe omgeving is er voldoende op
Deze tussenwoning in een rustige en kindvriendelijke woonwijk in Stiens is op zoek naar nieuwe bewoners! De woning is voorzien van kunststof kozijnen, wat zorgt voor minder onderhoud én een moderne uitstraling en heeft een praktische indeling met een lichte woonkamer, een functionele keuken en totaal 4 slaapkamers op de bovenverdieping. Met sch
Deze tussenwoning in een rustige en kindvriendelijke woonwijk in Stiens is op zoek naar nieuwe bewoners! De woning is voorzien van kunststof kozijnen, wat zorgt voor minder onderhoud én een moderne uitstraling en heeft een praktische indeling met een lichte woonkamer, een functionele keuken en totaal 4 slaapkamers op de bovenverdieping. Met scholen, winkels en openbaar vervoer op korte afstand is dit een ideale woning voor starters of jonge gezinnen die op zoek zijn naar een betaalbare en gezellige plek om hun eigen thuis van te maken.
Begane grond:
Binnenkomst via de entree in de hal met toegang tot het toilet, trapopgang naar de 1e verdieping en een trapkast. De gezellige lichte woonkamer is voorzien van een deur naar de achtertuin. De dichte keuken is functioneel en voorzien van een 4 pits gaskookplaat, afzuigkap, vaatwasser, oven en deur naar de achtertuin.
1e verdieping:
Vanaf de overloop zijn de 3 slaapkamers bereikbaar met kunststof draaikiepramen en de badkamer met ligbad/douche, wastafel en radiator.
2e verdieping:
Via een vaste trap kom je op de overloop met extra opbergruimte met CV opstelling geeft toegang tot een ruime 4e slaapkamer met dakraam en knieschotten.
Tuin:
De achtertuin met achterom is praktisch ingedeeld met een combinatie van terrasbestrating en groen, beschikt over een eenvoudige stenen berging met wasmachine aansluiting en is ideaal voor extra opbergruimte. Dankzij de ligging op het noordoosten geniet je hier optimaal van de ochtend- en middagzon. De grote voortuin is met veel groen aangelegd en in de directe omgeving is er voldoende openbare parkeergelegenheid beschikbaar.
Bijzonderheden:
- verdiepingsvloeren: begane grond beton, 1e en 2e verdieping hout
- kunststof kozijnen (behalve berging)
- HR-combiketel, Intergas (huur), voor verwarming en warmwatervoorziening
- rechtstreeks aangesloten op riool
- asbest- en ouderdomsclausule worden in de koopovereenkomst opgenomen
- Energielabel B (geldig tot 02 oktober 2035)
- overdrachtsdatum: in overleg
- eigen grond: 176 m²
Isolatie:
Dubbel glas: ja
Muurisolatie: ja
Vloerisolatie: nee
Dakisolatie: nee
Stiens:
Stiens telt ongeveer 8000 inwoners en ligt in de gemeente Leeuwarden aan de provinciale weg de N357 ten noorden van de stad Leeuwarden. Het dorp heeft een hoog voorzieningen niveau met een groot aantal winkels (o.a. Hema, Kruidvat, Blokker, Zeeman, Pearle en diverse kledingzaken), meerdere supermarkten, basisscholen, Sportcentrum ‘It Gryn’ (binnenzwembad, buitenzwembad en sporthallen) sportvelden, cultureel centrum “De Skalm”, kinderboerderij, etc.. De bevolking kent een grote verscheidenheid: oud inwoners, nieuwe Friese import en import van elders. Het dorp ligt op fietsafstand van Leeuwarden en er zijn zeer goede busverbindingen met de stad.
Afstanden:
Leeuwarden: 7 km
Dokkum: 25 km
Groningen: 80 km
Amsterdam: 142 km
Ameland: 18 km (veerboot)
Aan deze presentatie kunnen geen rechten aan worden ontleend. Deze informatie is door ons met de nodige zorgvuldigheid samengesteld, veelal aan de hand van de door verkoper aan ons ter hand gestelde gegevens en tekeningen. Onzerzijds wordt echter geen enkele aansprakelijkheid aanvaard voor enige onvolledigheid, onjuistheid of anderszins, dan wel de gevolgen daarvan. Dit geldt voor onder meer de opgegeven maten, oppervlakten, isolatie en ouderdom van technische installaties.
Toelichtingsclausule NEN2580.
De Meetinstructie is gebaseerd op de NEN2580. De Meetinstructie is bedoeld om een meer eenduidige manier van meten toe te passen voor het geven van een indicatie van de gebruiksoppervlakte. De Meetinstructie sluit verschillen in meetuitkomsten niet volledig uit, door bijvoorbeeld interpretatieverschillen, afrondingen of beperkingen bij het uitvoeren van de meting.
Interesse?
Heb je interesse in deze woning of wil je een bezichtiging inplannen? Wij helpen je graag."*" geeft vereiste velden aan
Plattegrond










