It Suderheech 10 – Ferwert
Kenmerken
Status
Vraagprijs
Oplevering
Energielabel
Bouwjaar
Inhoud
Woonoppervlakte
Aantal kamers
Aantal slaapkamers
Aantal badkamers
Perceeloppervlakte
Buitenruimte
Ligging tuin
Oppervlakte
Garage
Omschrijving
Kwalitatief hoogwaardig afgewerkte, levensloopbestendige vrijstaande woning met 4 slaapkamers en 2 badkamers.
In het sfeervolle dorp Ferwert staat deze uitstekend onderhouden, levensloopbestendige vrijstaande woning met een keurig aangelegde tuin, ruime oprit en een royale vrijstaande houten garage. De woning is gebouwd in 2001, uitgevoerd met onderhoudsarme materialen en beschikt over energielabel A. Zowel de begane grond als de eerste verdieping zijn uitgevoerd in beton, wat zorgt voor een solide en degelijke constructie.
Daarnaast is de woning grotendeels voorzien van kunststof kozijnen en buitendeuren met HR+ beglazing, wat bijdraagt aan optimale isolatie en minimaal onderhoud. In 2019 zijn er 10 zonnepanelen geplaatst. Verder is op vrijwel de gehele begane grond vloerverwarming aanwezig, wat zorgt voor een aangename en gelijkmatige warmte in huis. De keuken is uitgerust met een 5 pits gaskookplaat, vaatwasser, afzuigkap en voldoende kastruimte.
Dankzij de slaapkamer en badkamer op de begane grond is deze woning geschikt voor levensloopbestendig wonen. De woning is uitstekend onderhouden en direct te betrekken; eventuele aanpassingen zijn een kwestie van persoonlijke smaak.
Begane grond
Via de hal met garderobe, toilet, toegang tot de slaapkamer en trapopgang bereik je de lichte woonkamer met plavuizen vloer en vloerverwarming (nagenoeg over de gehele begane grond). De open keuken heeft een neutrale inrichting en is voorzien van een 5-pits gaskooktoestel, vaatwasser en afzuigkap. Vanuit de keuken is de praktische bijkeuken bereikbaar, waar zich de cv-ketel, de verdeler van de vloe
Kwalitatief hoogwaardig afgewerkte, levensloopbestendige vrijstaande woning met 4 slaapkamers en 2 badkamers.
In het sfeervolle dorp Ferwert staat deze uitstekend onderhouden, levensloopbestendige vrijstaande woning met een keurig aangelegde tuin, ruime oprit en een royale vrijstaande houten garage. De woning is gebouwd in 2001, uitgevoer
Kwalitatief hoogwaardig afgewerkte, levensloopbestendige vrijstaande woning met 4 slaapkamers en 2 badkamers.
In het sfeervolle dorp Ferwert staat deze uitstekend onderhouden, levensloopbestendige vrijstaande woning met een keurig aangelegde tuin, ruime oprit en een royale vrijstaande houten garage. De woning is gebouwd in 2001, uitgevoerd met onderhoudsarme materialen en beschikt over energielabel A. Zowel de begane grond als de eerste verdieping zijn uitgevoerd in beton, wat zorgt voor een solide en degelijke constructie.
Daarnaast is de woning grotendeels voorzien van kunststof kozijnen en buitendeuren met HR+ beglazing, wat bijdraagt aan optimale isolatie en minimaal onderhoud. In 2019 zijn er 10 zonnepanelen geplaatst. Verder is op vrijwel de gehele begane grond vloerverwarming aanwezig, wat zorgt voor een aangename en gelijkmatige warmte in huis. De keuken is uitgerust met een 5 pits gaskookplaat, vaatwasser, afzuigkap en voldoende kastruimte.
Dankzij de slaapkamer en badkamer op de begane grond is deze woning geschikt voor levensloopbestendig wonen. De woning is uitstekend onderhouden en direct te betrekken; eventuele aanpassingen zijn een kwestie van persoonlijke smaak.
Begane grond
Via de hal met garderobe, toilet, toegang tot de slaapkamer en trapopgang bereik je de lichte woonkamer met plavuizen vloer en vloerverwarming (nagenoeg over de gehele begane grond). De open keuken heeft een neutrale inrichting en is voorzien van een 5-pits gaskooktoestel, vaatwasser en afzuigkap. Vanuit de keuken is de praktische bijkeuken bereikbaar, waar zich de cv-ketel, de verdeler van de vloerverwarming en de aansluitingen voor de witgoedapparatuur bevinden. Daarnaast biedt de bijkeuken ruimte voor meerdere apparaten en een deur naar de tuin en de oprit.
Op de begane grond bevindt zich tevens een ruime slaapkamer met aangrenzende badkamer, voorzien van een dubbele wastafel, inloopdouche en natuurlijke lichtinval.
Eerste verdieping
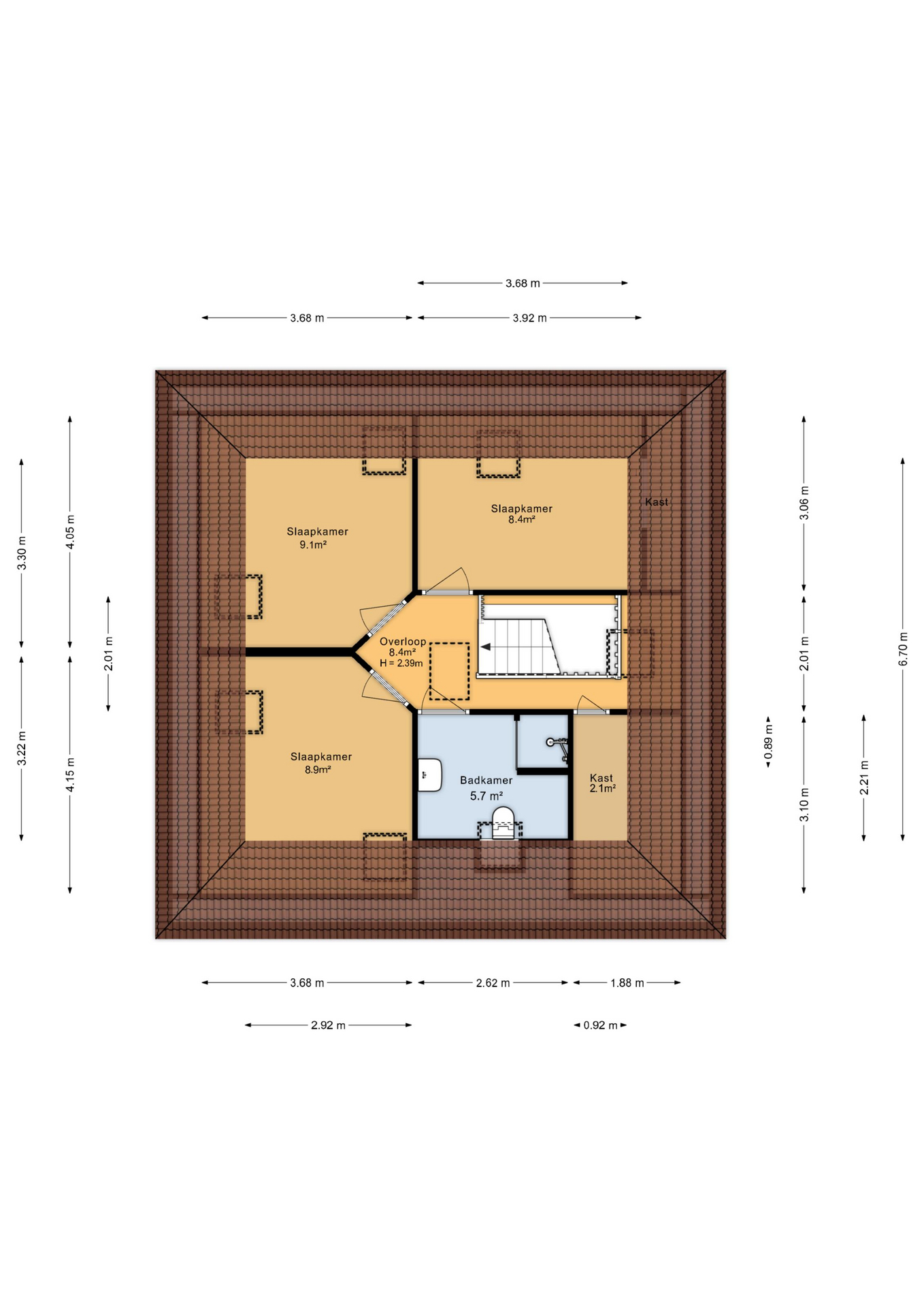
Op de verdieping vind je drie slaapkamers, een tweede badkamer met douche, wastafel en toilet, en een ruime berging/inloopkast. De zolder is bereikbaar via een vlizotrap en biedt extra bergruimte.
Buitenruimte
Aan de voorzijde van de woning bevindt zich een riante oprit met ruimte voor meerdere auto’s. Achter de woning staat een vrijstaande houten garage (ca. 8 x 4 meter) met een extra hoge toegang, geschikt voor bijvoorbeeld een camper of caravan. Op het dak van de garage zijn in 2019 tien zonnepanelen geplaatst. Rondom de woning ligt een verzorgde tuin met voldoende privacy. De achtertuin is gelegen op het westen.
Bijzonderheden
- Eigen grond: 621 m²
- Woonoppervlakte: 145 m²
- Bouwjaar: 2001
- Energielabel: A (geldig tot 09-12-2030)
- Fundering: begane grond beton, eerste etage beton, tweede etage (vliering) hout
- Aantal slaapkamers: 4
- Warmtevoorziening: CV ATAG, eigendom (2017) + WTW-unit
- Kozijnen (materiaal): grotendeels kunststof
- Badkamer beneden: dubbele wastafels, inloopdouche, radiator, natuurlijke- en mechanische ventilatie
- Badkamer boven: wastafel, douche, toilet, radiator, natuurlijke- en mechanische ventilatie
- Keuken: voorzien van 5 gaspitten, vaatwasser en afzuigkap
- Zonnepanelen: 10 zonnepanelen, eigendom (2019)
- Glasvezel aanwezig: ja
- Aangesloten op riool: ja
- Tuinligging: rondom
- Overdracht: in overleg
Isolatie
Dubbel glas: HR+
Muurisolatie: ja
Vloerisolatie: thermisch geïsoleerd
Dakisolatie: ja, vanuit de bouw
Ferwert
Ferwert is de hoofdplaats van de voormalige gemeente Ferwerderadiel met circa 1870 inwoners en biedt vele faciliteiten. De actieve middenstand bestaat uit o.a. een supermarkt, bakker, kapper, schoonheidssalon, winkel met huishoudelijke artikelen en een tweetal horecagelegenheden. In Ferwert zijn drie kerken en twee scholen aanwezig. Verder zijn er tennisbanen, sportvelden, een ijsbaan en sporthal. Met de busverbinding bent u binnen 25 minuten in Leeuwarden en binnen 30 minuten in Dokkum.
Afstanden
Stiens: 10 km
Leeuwarden: 17 km
Dokkum: 15 km
Aan deze presentatie kunnen geen rechten aan worden ontleend. Deze informatie is door ons met de nodige zorgvuldigheid samengesteld, veelal aan de hand van de door verkoper aan ons ter hand gestelde gegevens en tekeningen. Onzerzijds wordt echter geen enkele aansprakelijkheid aanvaard voor enige onvolledigheid, onjuistheid of anderszins, dan wel de gevolgen daarvan. Dit geldt voor onder meer de opgegeven maten, oppervlakten, isolatie en ouderdom van technische installaties.
Toelichtingsclausule NEN2580.
De Meetinstructie is gebaseerd op de NEN2580. De Meetinstructie is bedoeld om een meer eenduidige manier van meten toe te passen voor het geven van een indicatie van de gebruiksoppervlakte. De Meetinstructie sluit verschillen in meetuitkomsten niet volledig uit, door bijvoorbeeld interpretatieverschillen, afrondingen of beperkingen bij het uitvoeren van de meting.
Interesse?
Heb je interesse in deze woning of wil je een bezichtiging inplannen? Wij helpen je graag."*" geeft vereiste velden aan
Video
Plattegrond














