Dronrijperstraat 32 – Leeuwarden
Kenmerken
Status
Vraagprijs
Oplevering
Energielabel
Bouwjaar
Inhoud
Woonoppervlakte
Aantal kamers
Aantal slaapkamers
Aantal badkamers
Perceeloppervlakte
Buitenruimte
Ligging tuin
Oppervlakte
Garage
Omschrijving
Aan de Dronrijperstraat 32 in Leeuwarden staat deze karaktervolle hoekwoning. De woning beschikt over drie slaapkamers, een ruime vliering en een opvallend grote, (droge) kelder die in beton is gegoten. Door de jaren heen zijn er diverse verduurzamingsmaatregelen getroffen, waaronder zonnepanelen, een zonneboiler, dakisolatie en HR++ beglazing op de eerste verdieping (met uitzondering van het badkamerraam). Daarnaast is de kruipruimte onder de vloer gevuld met EPS-korrels tot de vloer. De begane grond biedt een ruime doorzonwoonkamer met open keuken en een praktische bijkeuken. De achtertuin met achterom en stenen berging is gelegen op het noorden. Een woning met een solide basis, veel ruimte en volop mogelijkheden om naar eigen smaak verder vorm te geven.
De woning ligt in een rustige straat in de bijzonder gewilde Vosseparkwijk op korte afstand van het centrum van Leeuwarden. De straat is netjes en kleinschalig, met aan het einde van de straat het Westerpark waar je heerlijk kunt wandelen of ontspannen in het groen. Tegelijkertijd wandel je binnen ongeveer vijf minuten het historische stadscentrum in met winkels, horeca en voorzieningen binnen handbereik. Parkeren in de straat gebeurt via een parkeervergunning van circa €60 per jaar in de blauwe zone. De combinatie van rust, groen en de nabijheid van de binnenstad maakt dit een gouden plek die zijn waarde behoudt.
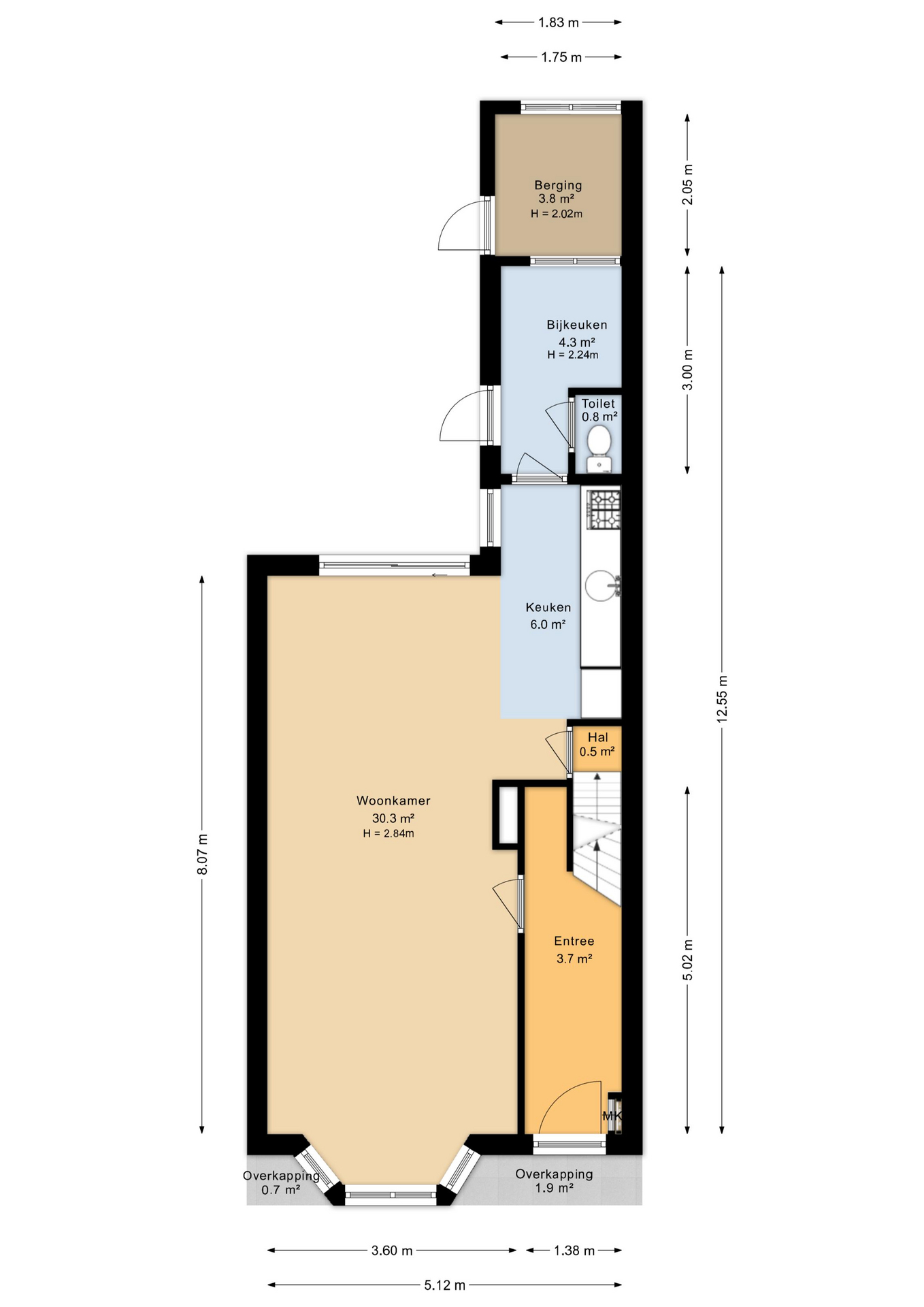
Begane grond
Bij binnenkomst kom je in de hal met de trapopgang naar de eerste verdieping. Vanuit hier loop je door naar de ruime doorzonwoonkamer met open keuken. De woonkamer is licht en heeft aan de achterzijde een schuifpui naar de
Aan de Dronrijperstraat 32 in Leeuwarden staat deze karaktervolle hoekwoning. De woning beschikt over drie slaapkamers, een ruime vliering en een opvallend grote, (droge) kelder die in beton is gegoten. Door de jaren heen zijn er diverse verduurzamingsmaatregelen getroffen, waaronder zonnepanelen, een zonneboiler, dakisolatie en HR++ beglazing o
Aan de Dronrijperstraat 32 in Leeuwarden staat deze karaktervolle hoekwoning. De woning beschikt over drie slaapkamers, een ruime vliering en een opvallend grote, (droge) kelder die in beton is gegoten. Door de jaren heen zijn er diverse verduurzamingsmaatregelen getroffen, waaronder zonnepanelen, een zonneboiler, dakisolatie en HR++ beglazing op de eerste verdieping (met uitzondering van het badkamerraam). Daarnaast is de kruipruimte onder de vloer gevuld met EPS-korrels tot de vloer. De begane grond biedt een ruime doorzonwoonkamer met open keuken en een praktische bijkeuken. De achtertuin met achterom en stenen berging is gelegen op het noorden. Een woning met een solide basis, veel ruimte en volop mogelijkheden om naar eigen smaak verder vorm te geven.
De woning ligt in een rustige straat in de bijzonder gewilde Vosseparkwijk op korte afstand van het centrum van Leeuwarden. De straat is netjes en kleinschalig, met aan het einde van de straat het Westerpark waar je heerlijk kunt wandelen of ontspannen in het groen. Tegelijkertijd wandel je binnen ongeveer vijf minuten het historische stadscentrum in met winkels, horeca en voorzieningen binnen handbereik. Parkeren in de straat gebeurt via een parkeervergunning van circa €60 per jaar in de blauwe zone. De combinatie van rust, groen en de nabijheid van de binnenstad maakt dit een gouden plek die zijn waarde behoudt.
Begane grond
Bij binnenkomst kom je in de hal met de trapopgang naar de eerste verdieping. Vanuit hier loop je door naar de ruime doorzonwoonkamer met open keuken. De woonkamer is licht en heeft aan de achterzijde een schuifpui naar de achtertuin, die op het noorden is gelegen. Naast de keuken bevindt zich een deur die leidt naar een zeer ruime, in beton gegoten kelder die via een trappetje bereikbaar is en ideaal is voor opslag of provisie. Via de keuken is er doorgang naar de bijkeuken, waar ruimte is voor onder andere de witgoedopstelling en waar zich tevens een apart toilet bevindt. Vanuit de bijkeuken is er ook een deur naar de achtertuin.
Eerste etage
Op de eerste verdieping bevinden zich drie slaapkamers, waarvan twee aan de voorzijde van de woning en één aan de achterzijde. In de slaapkamers zijn vaste kasten aanwezig die voor praktische bergruimte zorgen. De badkamer is voorzien van een ligbad, douche, tweede toilet en een wastafel.
Tweede etage
Via een vlizotrap is de vliering bereikbaar. Hier bevinden zich de zonneboiler en de cv-installatie. De ruimte is voorzien van een dakraam en biedt daarnaast extra bergruimte.
Tuin
De achtertuin ligt op het noorden en beschikt over een stenen berging. Daarnaast is er een achterom aanwezig, wat praktisch is voor bijvoorbeeld fietsen.
Bijzonderheden:
- Bouwjaar: 1929
- Energielabel: C (geldig tot 04-03-2036)
- Materiaal: begane grond hout, eerste etage hout, tweede etage hout
- Aantal slaapkamers: 3
- Warmtevoorziening: CV Nefit combiketel + zonneboiler (2009)
- Kozijnen (materiaal): hout
- Zonnepanelen: 6 panelen (2012)
- Glasvezel aanwezig: ja
- Tuinligging: noorden
- Clausules: niet-zelfbewoningsclausule, ouderdomsclausule en asbestclausule maken onderdeel uit van de koopovereenkomst
- "As is, where is"
- Overdracht: in overleg
Isolatie
Dubbel glas: dubbelglas, HR++, enkel glas in de badkamer
Vloerisolatie: EPS korrels (bodemisolatie), gevuld tot de vloer
Dakisolatie: IKO Enertherm PIR-isolatieplaten (0,022 W/mK)
Aan deze presentatie kunnen geen rechten aan worden ontleend. Deze informatie is door ons met de nodige zorgvuldigheid samengesteld, veelal aan de hand van de door verkoper aan ons ter hand gestelde gegevens en tekeningen. Onzerzijds wordt echter geen enkele aansprakelijkheid aanvaard voor enige onvolledigheid, onjuistheid of anderszins, dan wel de gevolgen daarvan. Dit geldt voor onder meer de opgegeven maten, oppervlakten, isolatie en ouderdom van technische installaties.
Toelichtingsclausule NEN2580.
De Meetinstructie is gebaseerd op de NEN2580. De Meetinstructie is bedoeld om een meer eenduidige manier van meten toe te passen voor het geven van een indicatie van de gebruiksoppervlakte. De Meetinstructie sluit verschillen in meetuitkomsten niet volledig uit, door bijvoorbeeld interpretatieverschillen, afrondingen of beperkingen bij het uitvoeren van de meting.
Disclaimer:
Enkele in deze presentatie opgenomen afbeeldingen betreffen een artist impression en zijn digitaal vervaardigd ter illustratie van een mogelijke situatie. Deze beelden kunnen afwijken van de huidige feitelijke staat van het object. Hieraan kunnen geen rechten worden ontleend.
Interesse?
Heb je interesse in deze woning of wil je een bezichtiging inplannen? Wij helpen je graag."*" geeft vereiste velden aan
Video
Plattegrond








