Johs. Kuikenstraat 10 – St.-Annaparochie
Kenmerken
Status
Vraagprijs
Oplevering
Energielabel
Bouwjaar
Inhoud
Woonoppervlakte
Aantal kamers
Aantal slaapkamers
Aantal badkamers
Perceeloppervlakte
Buitenruimte
Ligging tuin
Oppervlakte
Garage
Omschrijving
Op zoek naar een ruime twee-onder-1-kap woning op een perceel van bijna 500 m² gelegen in een rustige, kindvriendelijke buurt in het fijne dorp St. Annaparochie? Zoek dan niet verder! Deze royale woning met praktische indeling, volop leefruimte, 3 ruime slaapkamers én sfeervolle ruime tuin gelegen op het noorden. Daarnaast heb je het gemak van een eigen oprit en een garage, perfect voor het parkeren van je auto en extra opslagruimte. Kortom: een verrassend ruime woning met nog volop te creëren mogelijkheden om naar eigen wensen in te gaan delen. Kom snel kijken en laat je verrassen!
We nemen je graag mee door de woning:
Begane grond:
Via de voordeur kom je binnen in de hal met trap naar de eerste verdieping, toilet met fonteintje en geeft toegang tot de woonkamer. De ruime lichte woonkamer heeft een sfeervolle elektrische haard, voorzien van een schuifpui naar de achtertuin en geeft toegang tot de diepe kelderkast. De aangrenzende dichte keuken is praktisch ingericht met een oven, koelkast, 4 pits gaskookplaat met voldoende opbergruimte. Vanuit de keuken loop je door naar de ruime bijkeuken met elektra, radiator, wasmachine aansluiting en deur naar de garage.
Eerste verdieping:
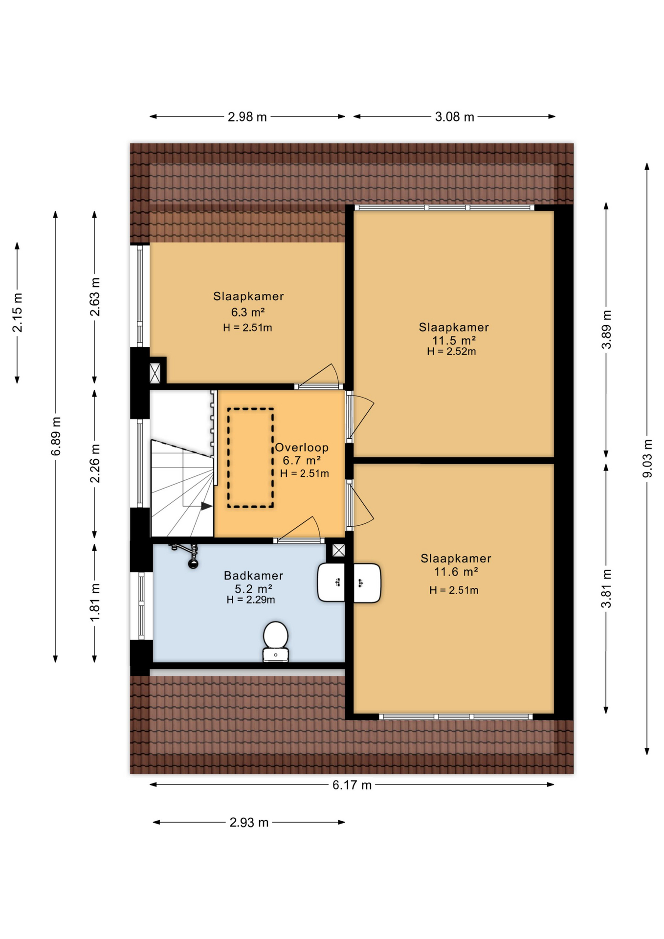
Op de eerste verdieping kom je op een ruime lichte overloop met trap naar de zolderberging en geeft toegang tot 3 slaapkamers en een functionele badkamer met douche, wastafelmeubel, toilet en radiator. Aan de zijkant gelegen bevindt zich een slaapkamer met knieschotten, aan de achterzijde een slaapkamer met dakkapel en aan de voorzijde gelegen een ruime slaapkamer met opbergruimte en wastafel.
Tweede v
Op zoek naar een ruime twee-onder-1-kap woning op een perceel van bijna 500 m² gelegen in een rustige, kindvriendelijke buurt in het fijne dorp St. Annaparochie? Zoek dan niet verder! Deze royale woning met praktische indeling, volop leefruimte, 3 ruime slaapkamers én sfeervolle ruime tuin gelegen op het noorden. Daarnaast heb je het gemak van
Op zoek naar een ruime twee-onder-1-kap woning op een perceel van bijna 500 m² gelegen in een rustige, kindvriendelijke buurt in het fijne dorp St. Annaparochie? Zoek dan niet verder! Deze royale woning met praktische indeling, volop leefruimte, 3 ruime slaapkamers én sfeervolle ruime tuin gelegen op het noorden. Daarnaast heb je het gemak van een eigen oprit en een garage, perfect voor het parkeren van je auto en extra opslagruimte. Kortom: een verrassend ruime woning met nog volop te creëren mogelijkheden om naar eigen wensen in te gaan delen. Kom snel kijken en laat je verrassen!
We nemen je graag mee door de woning:
Begane grond:
Via de voordeur kom je binnen in de hal met trap naar de eerste verdieping, toilet met fonteintje en geeft toegang tot de woonkamer. De ruime lichte woonkamer heeft een sfeervolle elektrische haard, voorzien van een schuifpui naar de achtertuin en geeft toegang tot de diepe kelderkast. De aangrenzende dichte keuken is praktisch ingericht met een oven, koelkast, 4 pits gaskookplaat met voldoende opbergruimte. Vanuit de keuken loop je door naar de ruime bijkeuken met elektra, radiator, wasmachine aansluiting en deur naar de garage.
Eerste verdieping:
Op de eerste verdieping kom je op een ruime lichte overloop met trap naar de zolderberging en geeft toegang tot 3 slaapkamers en een functionele badkamer met douche, wastafelmeubel, toilet en radiator. Aan de zijkant gelegen bevindt zich een slaapkamer met knieschotten, aan de achterzijde een slaapkamer met dakkapel en aan de voorzijde gelegen een ruime slaapkamer met opbergruimte en wastafel.
Tweede verdieping:
De zolderberging is gelegen over de gehele lengte van de woning, voorzien van dakraam en CV installatie.
Garage:
Aangebouwde stenen garage, van bijna 8,00 meter bij 4,00 meter met elektra, radiator en deur naar de achtertuin. De elektrische garagedeur geeft toegang tot de oprit, die genoeg ruimte biedt voor meerdere auto's.
Tuin:
De groene sfeervolle tuin op het noorden, is gelegen rondom de woning en is altijd keurig onderhouden en voorzien van veel groen, wat zorgt voor een natuurlijke en kleurrijke omgeving. De mogelijkheid voor meerdere terrassen, zorgt ervoor dat je op elk moment van de dag kunt kiezen voor zon of schaduw, perfect voor zomerse barbecues. Naast de garage, beschikt de achtertuin over een losstaand tuinhuis met elektra, ideaal voor al het tuingereedschap of tuinmeubilair.
Bijzonderheden:
- Begane grond en 1e verdieping beton ; 2e verdieping hout
- Meterkast 4 groepen, 1x aardlekschakelaar, aparte groep voor zonnepanelen
- HR-combiketel, Nefit (eigendom) voor verwarming en warmwatervoorziening
- 6 Zonnepanelen
- Aangesloten op riool
- Schilderwerk buitenom 2022/2023
- Nieuwe aangelegde schutting
- Energielabel C (geldig t/m 04 juli 2035)
- Ouderdomsclausule, niet zelfbewoningsclausule en asbestclausule maken onderdeel uit van de koopovereenkomst
- Eigendomsoverdracht in overleg
- Eigen grond: 462 m²
Isolatie:
- Dubbel glas: ja, deels
- Gevelisolatie: nee
- Vloerisolatie: nee
- Dakisolatie: nee
St.-Annaparochie:
St.-Annaparochie is een charmant en actief dorp in de gemeente Waadhoeke, met een rijke historie en een sterke gemeenschapszin. Het dorp beschikt over alle benodigde voorzieningen zoals een supermarkt, basisscholen, sportverenigingen en diverse winkels. De lokale evenementen en verenigingsleven zorgen voor een warme en betrokken sfeer waar jong en oud zich thuis voelen. Daarnaast ligt St.-Annaparochie dichtbij prachtige natuurgebieden en water, ideaal voor recreatie en ontspanning. De goede bereikbaarheid naar steden zoals Leeuwarden en Franeker maakt het een aantrekkelijke plek om te wonen voor mensen die de rust van het platteland zoeken, maar toch dichtbij stedelijke voorzieningen willen zijn.
Aan deze presentatie kunnen geen rechten aan worden ontleend. Deze informatie is door ons met de nodige zorgvuldigheid samengesteld, veelal aan de hand van de door verkoper aan ons ter hand gestelde gegevens en tekeningen. Onzerzijds wordt echter geen enkele aansprakelijkheid aanvaard voor enige onvolledigheid, onjuistheid of anderszins, dan wel de gevolgen daarvan. Dit geldt voor onder meer de opgegeven maten, oppervlakten, isolatie en ouderdom van technische installaties.
Toelichtingsclausule NEN2580.
De Meetinstructie is gebaseerd op de NEN2580. De Meetinstructie is bedoeld om een meer eenduidige manier van meten toe te passen voor het geven van een indicatie van de gebruiksoppervlakte. De Meetinstructie sluit verschillen in meetuitkomsten niet volledig uit, door bijvoorbeeld interpretatieverschillen, afrondingen of beperkingen bij het uitvoeren van de meting.
Interesse?
Heb je interesse in deze woning of wil je een bezichtiging inplannen? Wij helpen je graag."*" geeft vereiste velden aan
Plattegrond














