Memerdastate 6 – Hallum
Kenmerken
Status
Vraagprijs
Oplevering
Energielabel
Bouwjaar
Inhoud
Woonoppervlakte
Aantal kamers
Aantal slaapkamers
Aantal badkamers
Perceeloppervlakte
Buitenruimte
Ligging tuin
Oppervlakte
Garage
Omschrijving
Aan de rustige Memerdastate in Hallum staat deze goed onderhouden twee-onder-een-kapwoning uit 2003, gelegen op een perceel van 354 m² met een woonoppervlakte van circa 120 m². De woning is volledig uitgevoerd in onderhoudsarm kunststof, voorzien van HR++ glas en uitstekend geïsoleerd (muur-, vloer- en dakisolatie). In 2023 is de keuken vergroot met een uitbouw aan de achterzijde, waardoor een lichte en ruime leefkeuken met vloerverwarming is ontstaan, direct grenzend aan de woonkamer. De keuken is vernieuwd en voorzien van moderne inbouwapparatuur uit 2021. Op de eerste verdieping bevinden zich drie slaapkamers en een badkamer, en op de zolderverdieping is een vierde slaapkamer gerealiseerd. Het wooncomfort wordt verder versterkt door een CV-combiketel uit 2019, een nieuw WTW-systeem, een waterontharder, zonwering bij alle ramen en 20 zonnepanelen.
Buiten biedt de woning volop voorzieningen, waaronder een eigen oprit, een garage en een volledig geïsoleerde schuur waarvan de kozijnen en deur in 2025 nog zijn geschilderd. De achtertuin ligt op het zuidoosten, is bereikbaar via een achterom en biedt een vrij uitzicht over de weilanden. Hier bevindt zich tevens een overkapping met elektra en glazen wanden aan twee zijden, die volledig open of dicht gezet kunnen worden, ideaal om het hele jaar door van de tuin en het prachtige uitzicht te genieten. Zo ontstaat een prettige combinatie van licht, ruimte en privacy.
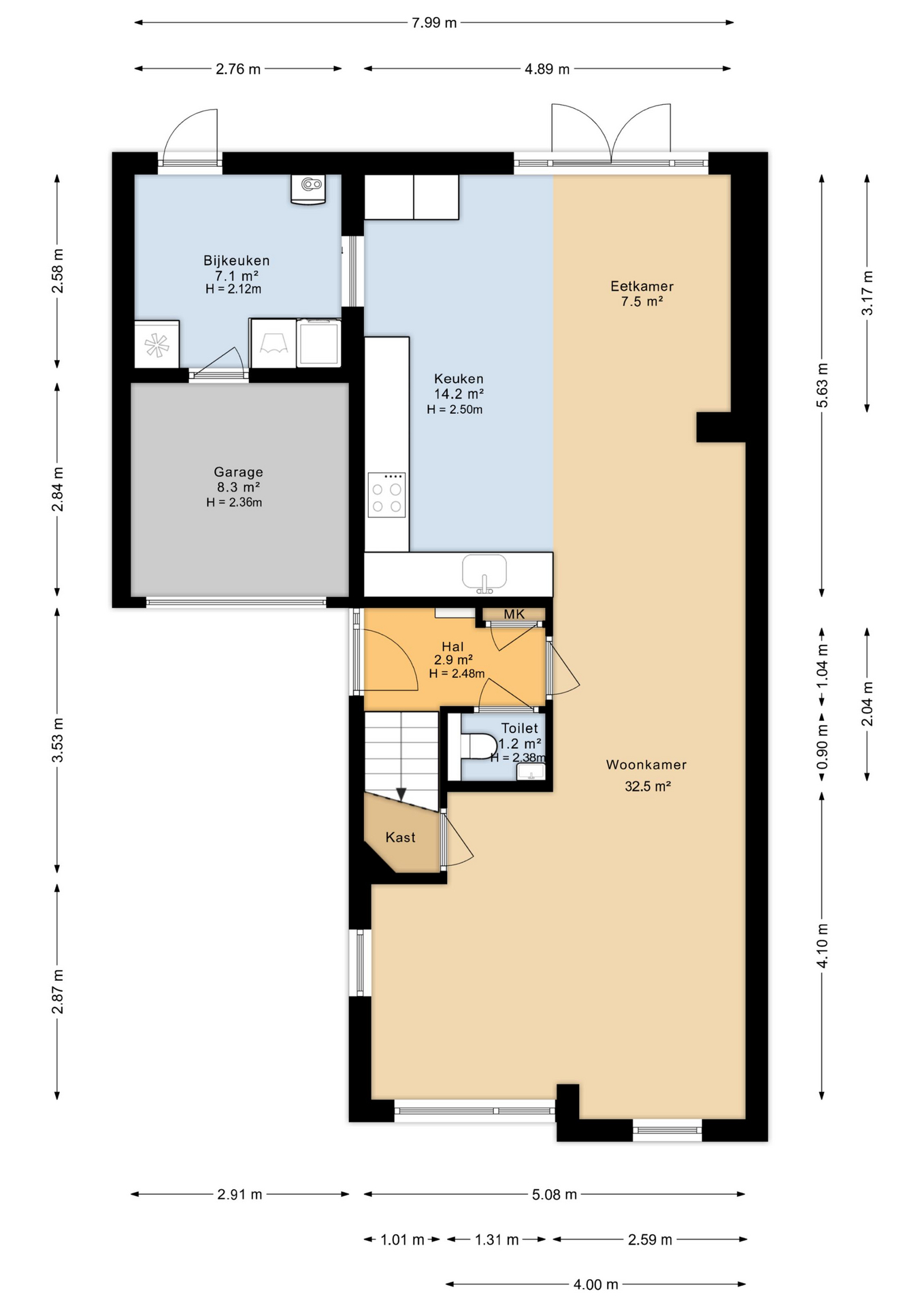
Begane grond
Via de entree met hal, meterkast en toilet is er toegang tot de woonkamer. De woonkamer van 32,5 m² is ruim en licht en staat in open verbinding met de keuken. De keuken (21,7
Aan de rustige Memerdastate in Hallum staat deze goed onderhouden twee-onder-een-kapwoning uit 2003, gelegen op een perceel van 354 m² met een woonoppervlakte van circa 120 m². De woning is volledig uitgevoerd in onderhoudsarm kunststof, voorzien van HR++ glas en uitstekend geïsoleerd (muur-, vloer- en dakisolatie). In 2023 is de keuken vergr
Aan de rustige Memerdastate in Hallum staat deze goed onderhouden twee-onder-een-kapwoning uit 2003, gelegen op een perceel van 354 m² met een woonoppervlakte van circa 120 m². De woning is volledig uitgevoerd in onderhoudsarm kunststof, voorzien van HR++ glas en uitstekend geïsoleerd (muur-, vloer- en dakisolatie). In 2023 is de keuken vergroot met een uitbouw aan de achterzijde, waardoor een lichte en ruime leefkeuken met vloerverwarming is ontstaan, direct grenzend aan de woonkamer. De keuken is vernieuwd en voorzien van moderne inbouwapparatuur uit 2021. Op de eerste verdieping bevinden zich drie slaapkamers en een badkamer, en op de zolderverdieping is een vierde slaapkamer gerealiseerd. Het wooncomfort wordt verder versterkt door een CV-combiketel uit 2019, een nieuw WTW-systeem, een waterontharder, zonwering bij alle ramen en 20 zonnepanelen.
Buiten biedt de woning volop voorzieningen, waaronder een eigen oprit, een garage en een volledig geïsoleerde schuur waarvan de kozijnen en deur in 2025 nog zijn geschilderd. De achtertuin ligt op het zuidoosten, is bereikbaar via een achterom en biedt een vrij uitzicht over de weilanden. Hier bevindt zich tevens een overkapping met elektra en glazen wanden aan twee zijden, die volledig open of dicht gezet kunnen worden, ideaal om het hele jaar door van de tuin en het prachtige uitzicht te genieten. Zo ontstaat een prettige combinatie van licht, ruimte en privacy.
Begane grond
Via de entree met hal, meterkast en toilet is er toegang tot de woonkamer. De woonkamer van 32,5 m² is ruim en licht en staat in open verbinding met de keuken. De keuken (21,7 m²) bevindt zich aan de achterzijde en is in 2023 vernieuwd; via openslaande deuren is er direct contact met de tuin. Aangrenzend is er een bijkeuken (7,1 m²) met aansluitingen voor wasapparatuur en toegang tot de garage (8,3 m²).
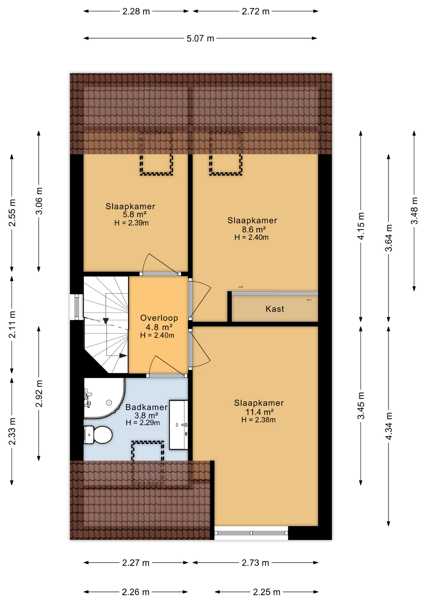
Eerste verdieping
Op de eerste verdieping zijn drie slaapkamers en een badkamer met tweede toilet, inloopdouche en wastafel aanwezig. De slaapkamers hebben een oppervlakte van respectievelijk 5,8 m², 8,6 m² en 11,4 m². De badkamer (3,8 m²) is ingericht met een douche, wastafel en toilet.
Tweede verdieping
De tweede verdieping is bereikbaar via een vaste trap en biedt ruimte aan een vierde slaapkamer. Deze verdieping beschikt daarnaast over extra bergruimte en de opstelling van de installaties.
Tuin
De woning staat op een perceel van 354 m². De achtertuin ligt op het zuidoosten en is bereikbaar via een achterom. In de tuin bevindt zich een geïsoleerde berging/garage met een aangrenzende overkapping voorzien van elektra. Deze overkapping biedt uitzicht over de omliggende weilanden en is uitgerust met glazen wanden aan twee kanten, die volledig open of dicht gezet kunnen worden. Aan de voorzijde van de woning ligt een eigen oprit met ruimte voor meerdere auto’s.
Bijzonderheden
- Eigen grond: 354m2
- Woonoppervlakte: 120m2
- Bouwjaar: 2003
- Energielabel: A++ (geldig tot 11-09-2035)
- Fundering: begane grond beton, eerste etage beton, tweede etage beton
- Aantal slaapkamers: 4
- Warmtevoorziening: CV Intergas (2019) en vloerverwarming
- Kozijnen (materiaal): kunststof, gevelbekleding ook kunststof
- Keuken: 2023 uitbouw, apparatuur 2021
- Zonnepanelen: 20 zonnepanelen
- Meterkast: 10 groepen en 3 fasen
- Waterontharder aanwezig: ja
- Glasvezel aanwezig: ja
- Aangesloten op riool: ja
- Tuinligging: zuidoost (achtertuin)
- Overdracht: eind 2025
Isolatie
Dubbel glas: HR++
Muurisolatie: ja
Vloerisolatie: ja
Dakisolatie: ja
Hallum
Hallum is het grootste dorp van de voormalige gemeente Ferwerderadiel en is nu onderdeel van de gemeente Noard East Fryslan met zo'n 3.000 inwoners. Het is deels een forenzendorp. Niet alleen nu, maar ook vroeger trok Hallum al veel mensen aan, getuige het vroegere nabijgelegen klooster Mariëngaarde. Hallum voorziet u van alle dagelijkse behoeften: er zijn twee garages, pompstation, postagentschap, pinautomaat , supermarkt, slager, bakker, en chinees in het dorp aanwezig. Voor de kinderen zijn er 2 basisscholen en er is een dierenpark met speeltuin. De bekende ‘grootbakkers’, Hellema en Van der Meulen, bieden veel werkgelegenheid aan de mensen in de omgeving. Ook zijn er voldoende verenigingen en sportaccommodaties in Hallum, te weten een openlucht zwembad, sportvelden, tennisbanen en een multifunctioneel centrum waar zaalsporten uitgeoefend kunnen worden. Het dorp is gelegen aan open vaarwater met een jachthaven die via de Hallumervaart in directe verbinding staat met de Dokkumer Ee (Elfsteden route). Aan dit vaarwater aan de zuidkant van Hallum ligt het nieuwbouwplan “Oer de Feart”. Hallum heeft goede busverbindingen met Stiens, Leeuwarden en Dokkum. http://www.hallumonline.nl
Afstanden
Stiens: 5 km
Sint Annaparochie: 13 km
Holwerd: 12 km (veerboot naar Ameland)
Leeuwarden: 15 km
Dokkum: 18 km
Groningen: 80 km
Amsterdam: 150 km
Aan deze presentatie kunnen geen rechten aan worden ontleend.
Deze informatie is door ons met de nodige zorgvuldigheid samengesteld, veelal aan de hand van de door verkoper aan ons ter hand gestelde gegevens en tekeningen. Onzerzijds wordt echter geen enkele aansprakelijkheid aanvaard voor enige onvolledigheid, onjuistheid of anderszins, dan wel de gevolgen daarvan. Dit geldt voor onder meer de opgegeven maten, oppervlakten, isolatie en ouderdom van technische installaties.
Toelichtingsclausule NEN2580.
De Meetinstructie is gebaseerd op de NEN2580. De Meetinstructie is bedoeld om een meer eenduidige manier van meten toe te passen voor het geven van een indicatie van de gebruiksoppervlakte. De Meetinstructie sluit verschillen in meetuitkomsten niet volledig uit, door bijvoorbeeld interpretatieverschillen, afrondingen of beperkingen bij het uitvoeren van de meting.
Interesse?
Heb je interesse in deze woning of wil je een bezichtiging inplannen? Wij helpen je graag."*" geeft vereiste velden aan
Video
Plattegrond

















