Siktaris Brouwerstraat 1B – St.-Annaparochie
Kenmerken
Status
Vraagprijs
Oplevering
Energielabel
Bouwjaar
Inhoud
Woonoppervlakte
Aantal kamers
Aantal slaapkamers
Aantal badkamers
Perceeloppervlakte
Buitenruimte
Ligging tuin
Oppervlakte
Garage
Omschrijving
OPENHUIS: Kom vrijblijvend binnen kijken op donderdag 27 november aanstaande tussen 13:00 - 14:00 uur of op maandag 1 december van 9:30 - 10:30 uur.
Welkom in deze ruime en moderne 2-1 kapwoning, die niet alleen stijlvol is afgewerkt, maar ook klaar is voor de toekomst. De woning is volledig geïsoleerd met vloerverwarming op de begane grond en beschikt over een uitstekend energielabel A+. Met maar liefst 23 zonnepanelen, airconditioning in de woonkamer (zowel warme en koude luchttoevoer) profiteer je van lage energiekosten en draag je direct bij aan een duurzame leefomgeving. In 2021 is er een nieuwe uitbouw gerealiseerd, waardoor er een prachtige leefkeuken met veel lichtinval is gekomen door een grote kunststof schuifpui en aanzienlijke lichtstraat. De nieuwe moderne keuken uit 2023 is voorzien van alle luxe inbouwapparatuur. Kortom: deze volledig instapklare, energiezuinige en comfortabele gezinswoning die van alle gemakken is voorzien, is klaar voor nieuwe bewoners.
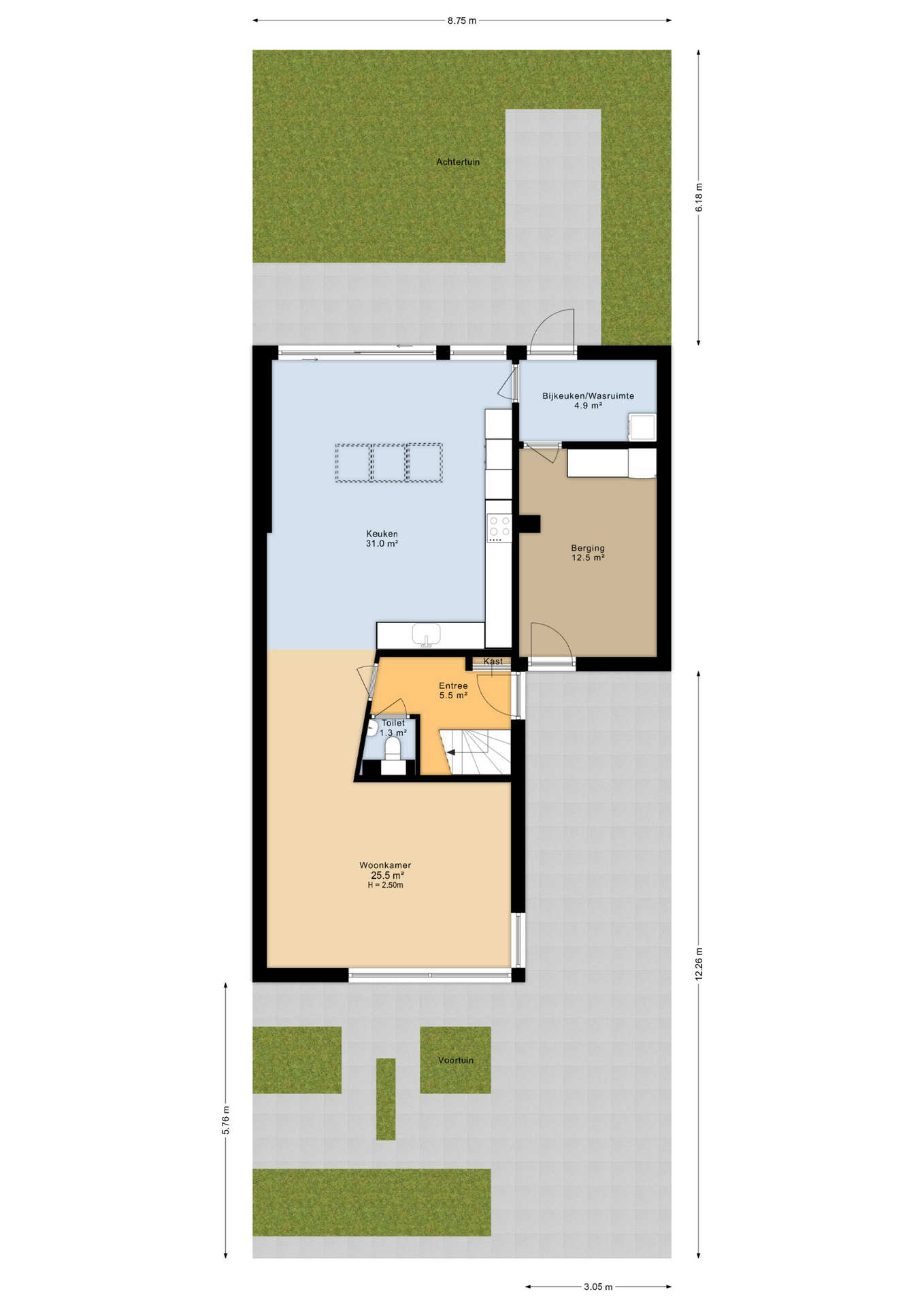
Begane grond
Bij binnenkomst kom je in de ruime hal met trapopgang naar de eerste verdieping, het moderne toilet (2023) en geeft toegang tot de woonkamer. De open royale leefkeuken met veel lichtinval door de lichtstraat, is voorzien van een ruim werkblad en diverse luxe inbouwapparatuur zoals een Quooker, combi oven, oven met stoomfunctie, 5-pits inductie-kookplaat, vaatwasser en koelkast. De kunststof schuifpui is geplaatst over de gehele achterzijde van de woning, wat daardoor bijdraagt aan het vele lichtinval en een ruimtelijk effect. Aan de voorzijde van de woning bevindt zich het gezellige woongedeelte en is voorzien van een a
OPENHUIS: Kom vrijblijvend binnen kijken op donderdag 27 november aanstaande tussen 13:00 - 14:00 uur of op maandag 1 december van 9:30 - 10:30 uur.
Welkom in deze ruime en moderne 2-1 kapwoning, die niet alleen stijlvol is afgewerkt, maar ook klaar is voor de toekomst. De woning is volledig geïsoleerd met vloerverwarming op de begane gr
OPENHUIS: Kom vrijblijvend binnen kijken op donderdag 27 november aanstaande tussen 13:00 - 14:00 uur of op maandag 1 december van 9:30 - 10:30 uur.
Welkom in deze ruime en moderne 2-1 kapwoning, die niet alleen stijlvol is afgewerkt, maar ook klaar is voor de toekomst. De woning is volledig geïsoleerd met vloerverwarming op de begane grond en beschikt over een uitstekend energielabel A+. Met maar liefst 23 zonnepanelen, airconditioning in de woonkamer (zowel warme en koude luchttoevoer) profiteer je van lage energiekosten en draag je direct bij aan een duurzame leefomgeving. In 2021 is er een nieuwe uitbouw gerealiseerd, waardoor er een prachtige leefkeuken met veel lichtinval is gekomen door een grote kunststof schuifpui en aanzienlijke lichtstraat. De nieuwe moderne keuken uit 2023 is voorzien van alle luxe inbouwapparatuur. Kortom: deze volledig instapklare, energiezuinige en comfortabele gezinswoning die van alle gemakken is voorzien, is klaar voor nieuwe bewoners.
Begane grond
Bij binnenkomst kom je in de ruime hal met trapopgang naar de eerste verdieping, het moderne toilet (2023) en geeft toegang tot de woonkamer. De open royale leefkeuken met veel lichtinval door de lichtstraat, is voorzien van een ruim werkblad en diverse luxe inbouwapparatuur zoals een Quooker, combi oven, oven met stoomfunctie, 5-pits inductie-kookplaat, vaatwasser en koelkast. De kunststof schuifpui is geplaatst over de gehele achterzijde van de woning, wat daardoor bijdraagt aan het vele lichtinval en een ruimtelijk effect. Aan de voorzijde van de woning bevindt zich het gezellige woongedeelte en is voorzien van een airco voor een aangename temperatuur, zowel in de zomer als in de winter. De begane grond is voorzien van een tegelvloer in houtlook. Vanuit de leefkeuken heb je toegang tot de bijkeuken met aansluitingen voor witgoed en geeft toegang tot de tuin. Aangrenzend bevindt zich een berging met deur naar de oprit, welke als multi functionele ruimte gebruikt kan worden.
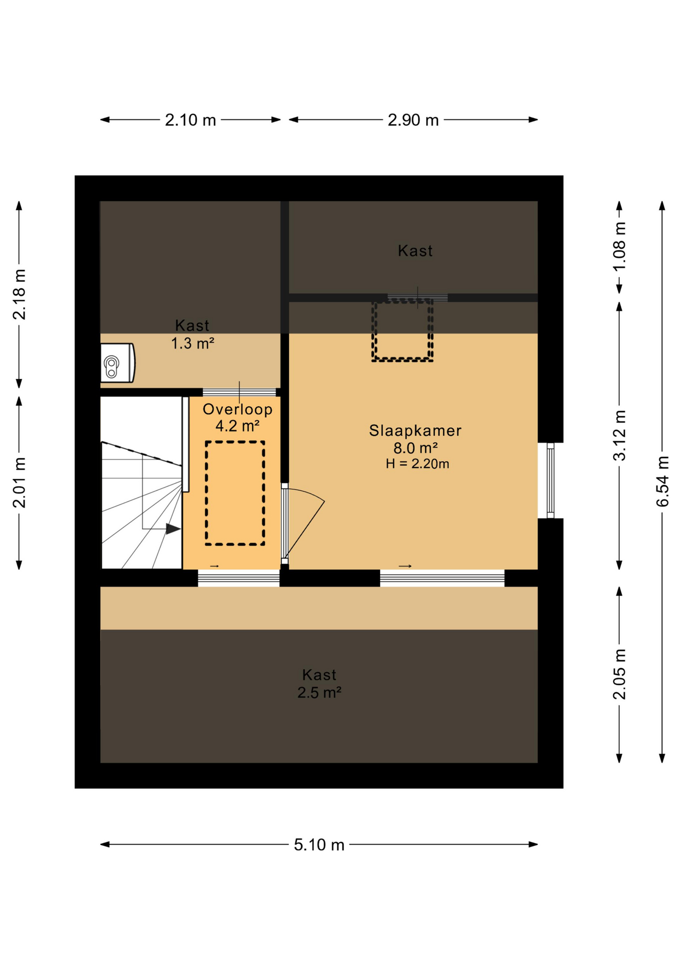
Eerste verdieping
Op de eerste verdieping bevinden zich drie mooie ruime slaapkamers en badkamer. De ruime badkamer is uitgerust met een ligbad, inloopdouche, wastafelmeubel, toilet en radiator.
Tweede verdieping
De tweede verdieping heeft een ruime overloop met Cv-installatie kast, extra opbergkast en geeft toegang tot de nette 4e slaapkamer met voldoende opbergruimte door de knieschotten en opbergkast.
Vliering
Te bereiken via overloop, ideaal voor extra opslagruimte.
Tuin
De nette aangelegde beschutte achtertuin is op het oosten gelegen en grotendeels betegeld, waardoor je weinig onderhoud hebt en toch volop kunt genieten van het buitenleven. Dankzij de slimme indeling is de tuin niet alleen mooi, maar ook verrassend beschut, waardoor je hier in alle rust kunt ontspannen of gezellig kunt borrelen met vrienden. De voortuin beschikt over een ruime oprit waar je makkelijk meerdere auto's kwijt kunt.
Bijzonderheden:
- Fundering: begane grond, 1e verdieping + 2e verdieping; beton
- 2021 uitbouw achterzijde woning met kunststof schuifpui en kunststof lichtstraat in woonkeuken
- Nieuwe woonkeuken en toilet uit 2023
- Verwarming: HR CV-ketel Intergas (2019, eigendom)
- Vloerverwarming: gehele begane grond (water)
- Zonnepanelen: 23 stuks (15 eigendom, 8 huur)
- Airconditioning in woonkamer (voor warme en koude luchttoevoer)
- Vernieuwde meterkast (2023)
- Waterontharder: aanwezig
- Mechanische ventilatie unit: aanwezig
- Elektrisch zonnescherm achterzijde woning (2022)
- Schilderwerk: beneden 2023, boven 2018
- Energielabel: A+ (geldig t/m 12-09-2035)
- Aangesloten op riool
- Overdracht: eind januari 2026
- Eigen grond: 216 m²
Isolatie:
Dubbel glas: ja
Muurisolatie: nee
Vloerisolatie: ja
Dakisolatie: ja
St.-Annaparochie
St.-Annaparochie is een levendig dorp met ruim 4.500 inwoners en biedt een breed scala aan voorzieningen. Je vindt er onder andere supermarkten, basisscholen, sportclubs en diverse horecagelegenheden. Het dorp heeft een actieve gemeenschap met voetbal-, tennis- en kaatsverenigingen. Ook zijn er mogelijkheden voor wandelen en fietsen in de groene omgeving. St.-Annaparochie ligt in een typisch Friese polderlandschap, omringd door open velden en watergangen. Niet ver van het dorp liggen natuurgebieden waar je in verschillende seizoenen bijzondere vogels kunt spotten. De combinatie van landelijke rust en alle dagelijkse voorzieningen binnen handbereik maakt St.-Annaparochie tot een prettige plek om te wonen.
Afstanden
Stiens: 8 km
Leeuwarden: 15 km
Amsterdam: 140 km
Aan deze presentatie kunnen geen rechten aan worden ontleend. Deze informatie is door ons met de nodige zorgvuldigheid samengesteld, veelal aan de hand van de door verkoper aan ons ter hand gestelde gegevens en tekeningen. Onzerzijds wordt echter geen enkele aansprakelijkheid aanvaard voor enige onvolledigheid, onjuistheid of anderszins, dan wel de gevolgen daarvan. Dit geldt voor onder meer de opgegeven maten, oppervlakten, isolatie en ouderdom van technische installaties.
Toelichtingsclausule NEN2580.
De Meetinstructie is gebaseerd op de NEN2580. De Meetinstructie is bedoeld om een meer eenduidige manier van meten toe te passen voor het geven van een indicatie van de gebruiksoppervlakte. De Meetinstructie sluit verschillen in meetuitkomsten niet volledig uit, door bijvoorbeeld interpretatieverschillen, afrondingen of beperkingen bij het uitvoeren van de meting.
Interesse?
Heb je interesse in deze woning of wil je een bezichtiging inplannen? Wij helpen je graag."*" geeft vereiste velden aan
Video
Plattegrond









