Wânswerterdyk 2 – Burdaard
Kenmerken
Status
Vraagprijs
Oplevering
Energielabel
Bouwjaar
Inhoud
Woonoppervlakte
Aantal kamers
Aantal slaapkamers
Aantal badkamers
Perceeloppervlakte
Buitenruimte
Ligging tuin
Oppervlakte
Garage
Omschrijving
OPEN HUIS! Kom vrijblijvend, zonder afspraak, langs tijdens de kijkdagen op:
- maandag 15 september a.s. tussen 9.30 uur en 10:30 uur;
- donderdag 18 september a.s. tussen 16.00 uur en 17.00 uur.
Klussers opgelet! Op een gezellige locatie in het prachtige dorp Burdaard bieden wij deze twee-onder-1-kapwoning aan met 1 slaapkamer boven en slaapkamer/ hobbyruimte beneden, met zeer ruime achtertuin op het noordwesten. Heb je interesse in deze starterswoning en ben je bereid om je handen uit de mouwen te steken om deze woning en tuin geheel naar eigen smaak en wensen te gaan inrichten? Kom dan langs!
We nemen je graag mee door de woning:
Begane grond:
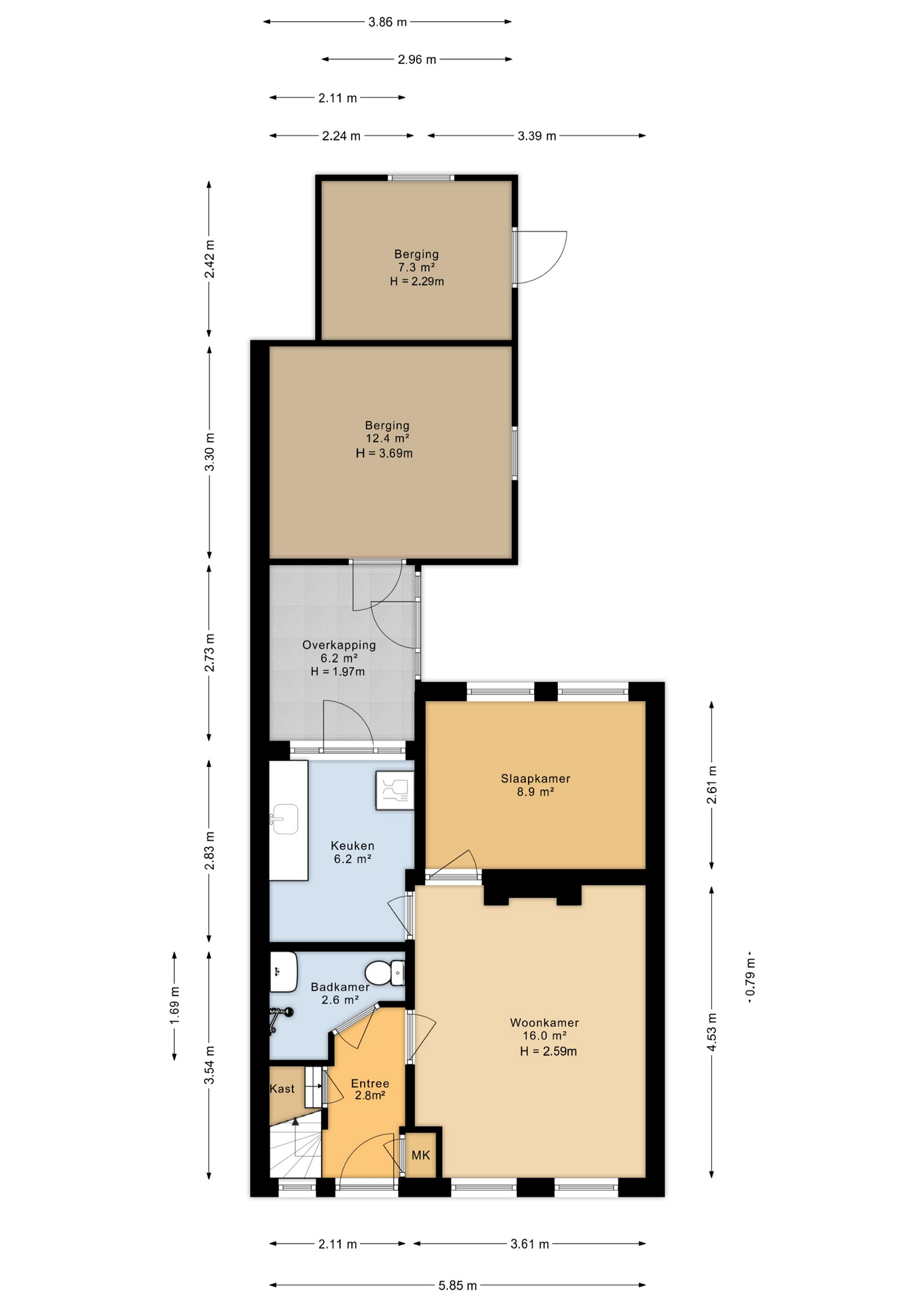
Via de voor entree kom je in de hal met trapopgang naar 1e verdieping, douchegelegenheid met toilet en wastafel, deur naar de kelderkast en woonkamer. De lichte woonkamer met gaskachel, heeft grote raampartijen en geeft toegang tot de slaapkamer/hobbyruimte beneden. De dichte keuken is voorzien van een eenvoudig keukenblok met wasmachine aansluiting en geeft toegang tot de bijkeuken, die leidt je naar het opberghok en naar de achtertuin.
1e verdieping:
De overloop met dakraam biedt toegang tot 1 slaapkamer.
Tuin:
De achtertuin is gelegen op het noordwesten, heeft twee bergingen en een watertappunt. De voortuin is onderhoudsvrij.
Bijzonderheden:
- alle verdiepingen; houten vloeren
- gaskachel in woonkamer voor verwarming (niet bekend of functioneel is) en geiser voor warmwatervoorziening ontbreekt
- meterkast: 8 groepen en aparte groep voor de zonnepanelen
- 6 zonnepanelen
-
OPEN HUIS! Kom vrijblijvend, zonder afspraak, langs tijdens de kijkdagen op:
- maandag 15 september a.s. tussen 9.30 uur en 10:30 uur;
- donderdag 18 september a.s. tussen 16.00 uur en 17.00 uur.
Klussers opgelet! Op een gezellige locatie in het prachtige dorp Burdaard bieden wij deze twee-onder-1-kapwoning aan met 1 slaapkame
OPEN HUIS! Kom vrijblijvend, zonder afspraak, langs tijdens de kijkdagen op:
- maandag 15 september a.s. tussen 9.30 uur en 10:30 uur;
- donderdag 18 september a.s. tussen 16.00 uur en 17.00 uur.
Klussers opgelet! Op een gezellige locatie in het prachtige dorp Burdaard bieden wij deze twee-onder-1-kapwoning aan met 1 slaapkamer boven en slaapkamer/ hobbyruimte beneden, met zeer ruime achtertuin op het noordwesten. Heb je interesse in deze starterswoning en ben je bereid om je handen uit de mouwen te steken om deze woning en tuin geheel naar eigen smaak en wensen te gaan inrichten? Kom dan langs!
We nemen je graag mee door de woning:
Begane grond:
Via de voor entree kom je in de hal met trapopgang naar 1e verdieping, douchegelegenheid met toilet en wastafel, deur naar de kelderkast en woonkamer. De lichte woonkamer met gaskachel, heeft grote raampartijen en geeft toegang tot de slaapkamer/hobbyruimte beneden. De dichte keuken is voorzien van een eenvoudig keukenblok met wasmachine aansluiting en geeft toegang tot de bijkeuken, die leidt je naar het opberghok en naar de achtertuin.
1e verdieping:
De overloop met dakraam biedt toegang tot 1 slaapkamer.
Tuin:
De achtertuin is gelegen op het noordwesten, heeft twee bergingen en een watertappunt. De voortuin is onderhoudsvrij.
Bijzonderheden:
- alle verdiepingen; houten vloeren
- gaskachel in woonkamer voor verwarming (niet bekend of functioneel is) en geiser voor warmwatervoorziening ontbreekt
- meterkast: 8 groepen en aparte groep voor de zonnepanelen
- 6 zonnepanelen
- energielabel G (geldig tot 10 november 2030)
- aanwezigheid van asbest op dak berging / bitumen en voormalig HWA afvoer zijkant woning
- de woning mag niet worden verhuurd worden, er zal een zelfbewoningsverplichting in de koopovereenkomst worden opgenomen
- ouderdomsclausule, asbestclausule en niet zelfbewoningsclausule maken onderdeel uit van de koopovereenkomst
- projectnotaris: De Vries & Feenstra te Berltsum
- eigendomsoverdracht in overleg, kan snel
- eigen grond: 247 m²
Isolatie:
Dubbel glas: ja, grotendeels
Muurisolatie: nee
Vloerisolatie: nee
Dakisolatie: nee
Burdaard:
Burdaard is een van de mooiste Friese terpdorpen met ongeveer 1.100 inwoners en ligt in de gemeente Noardeast-Fryslân (voorheen Ferwerderadiel). Het dorp ligt aan de Dokkumer Ee (staande mastroute) met verbindingen naar Dokkum, het Lauwersmeergebied, de Waddenzee, Leeuwarden, Harlingen en het Friese merengebied. Burdaard ligt aan de 11 Stedentocht-route, gezellig als het weer eens gaat vriezen. Burdaard heeft de hoogste molen van Friesland “De Zwaluw” Hier vlakbij ligt ook de centrale brug die de beide dorpshelften verbindt.
Het dorp Burdaard heeft een bloeiende middenstand en beschikt over veel voorzieningen, 1 supermarkt met PostNL loket, de ander met veel streekproducten o.a. met meel van molen de Zwaluw, 2 garagebedrijven, 2 bloemenwinkels, kapper, schoonheidssalon, jachthaven met minicamping, een hotel-café-restaurant, snackbar en een basisschool. Ook heeft het dorp een eigen huisartspraktijk met apotheek. Verder is er een Multifunctioneel centrum waarin een theater, bioscoop, bibliotheek, kinderopvang en een sportcomplex met onder andere: binnenzwembad, fitness, tennisbanen, voetbal- en korfbalvelden en gymzaal. Aan de buitenzijde van het MFC bevindt zich een pinautomaat van de Rabobank.
Afstanden:
Dokkum: 12 km
Bartlehiem: 3 km
Hallum: 8 km
Stiens: 14 km
Hurdegaryp: 14 km
Leeuwarden: 16 km
Aan deze presentatie kunnen geen rechten aan worden ontleend. Deze informatie is door ons met de nodige zorgvuldigheid samengesteld, veelal aan de hand van de door verkoper aan ons ter hand gestelde gegevens en tekeningen. Onzerzijds wordt echter geen enkele aansprakelijkheid aanvaard voor enige onvolledigheid, onjuistheid of anderszins, dan wel de gevolgen daarvan. Dit geldt voor onder meer de opgegeven maten, oppervlakten, isolatie en ouderdom van technische installaties.
Toelichtingsclausule NEN2580.
De Meetinstructie is gebaseerd op de NEN2580. De Meetinstructie is bedoeld om een meer eenduidige manier van meten toe te passen voor het geven van een indicatie van de gebruiksoppervlakte. De Meetinstructie sluit verschillen in meetuitkomsten niet volledig uit, door bijvoorbeeld interpretatieverschillen, afrondingen of beperkingen bij het uitvoeren van de meting.
Interesse?
Heb je interesse in deze woning of wil je een bezichtiging inplannen? Wij helpen je graag."*" geeft vereiste velden aan
Plattegrond













