Stiens – Langebuorren 8
Kenmerken
$object->transactieDatumStatus
Vraagprijs
Totale oppervlakte
Perceeloppervlakte
Oppervlakte bedrijfshal
Oppervlakte kantoorruimte
Woonoppervlakte
Parkeerplaatsen
In units vanaf
Locatie
Onderhoud binnen
Onderhoud buiten
Aanvaarding
Servicekosten
BTW Belast
Omschrijving
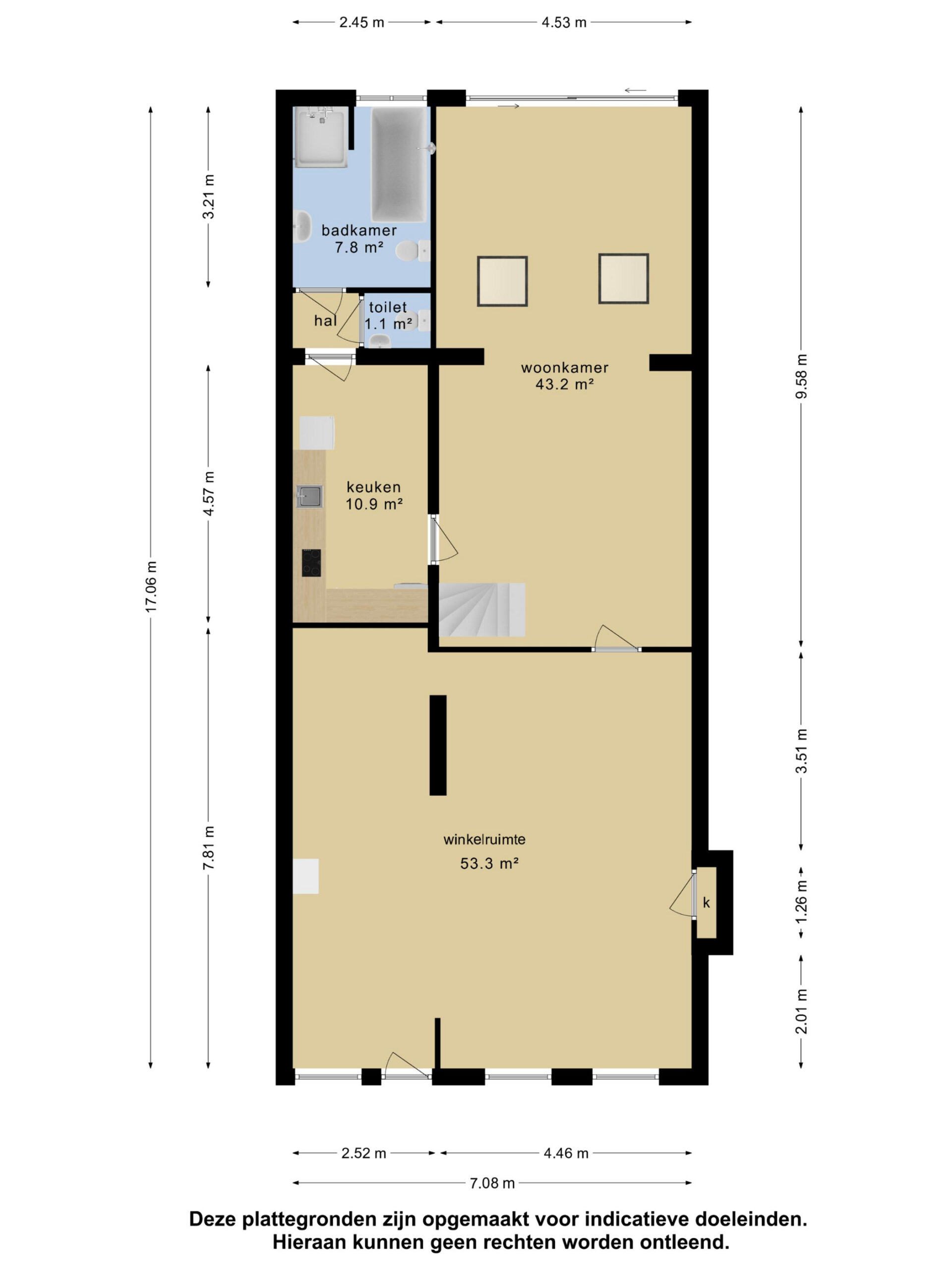
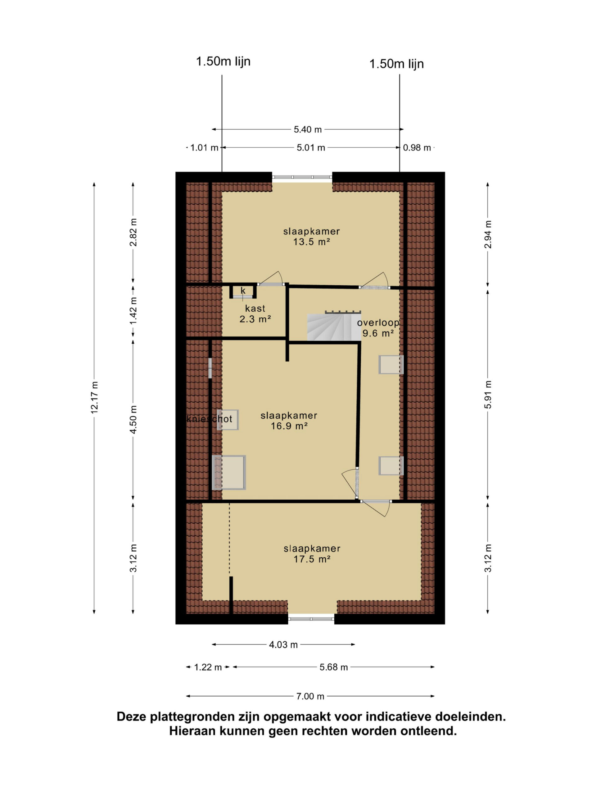
Wat een mooie locatie! Midden in het centrum van Stiens bieden wij dit woon-/winkelpand met openbare parkeergelegenheid aan. Het pand biedt mogelijkheden voor zeer veel verschillende bedrijfsactiviteiten, maar ook is er de mogelijkheid om het pand in zijn geheel te bewonen. Op loopafstand zijn er verschillende basisscholen, supermarkt(en), winkels en het zwembad op fietsafstand gelegen. Het pand is voorzien van houten vloeren en houten kozijnen, met een originele sfeervol houten plafond. Aan de achterkant van het winkelpand bevindt zich het woongedeelte met aparte keuken en de badkamer is beneden gelegen. En in de ruime tuin met achterom, kunt u bijna de gehele dag genieten van de zon. Op de eerste verdieping bevinden zich 3 zeer ruime slaapkamers met inbouwkasten, dus de woning biedt voldoende ruimte voor een gezin.
We nemen je graag mee door het woon-/winkelpand:
Via de voor entree komt u in de winkelruimte terecht (53,5 m²) met houten vloer en een originele prachtig sfeervolle houten plafond. Aan de achterzijde is nog een extra open kamer gesitueerd, een opbergkast en meterkast. Via het winkelpand kom je in de zeer ruime eet- en woonkamer (43 m²) met laminaat vloer. Het plafond in de woonkamer is verlaagd, maar door de twee lichtkoepels en de grote glazen schuifpui naar de tuin, is er veel lichtinval. De screen die over de gehele schuifpui geplaatst is, houdt de woonkamer aangenaam koel tijdens de warme zomerdagen. De dichte keuken (11 m²) bereik je via de eetkamer. De keuken is voorzien van een wasmachine- en drogeraansluiting, aparte koelkast, 5 pits kooktoestel en mooie grote oven met afzuigkap. V...
Wat een mooie locatie! Midden in het centrum van Stiens bieden wij dit woon-/winkelpand met openbare parkeergelegenheid aan. Het pand biedt mogelijkheden voor zeer veel verschillende bedrijfsactiviteiten, maar ook is er de mogelijkheid om het pand in zijn geheel te bewonen. Op loopafstand zijn er verschillende basisscholen, supermarkt(en), winke...
Wat een mooie locatie! Midden in het centrum van Stiens bieden wij dit woon-/winkelpand met openbare parkeergelegenheid aan. Het pand biedt mogelijkheden voor zeer veel verschillende bedrijfsactiviteiten, maar ook is er de mogelijkheid om het pand in zijn geheel te bewonen. Op loopafstand zijn er verschillende basisscholen, supermarkt(en), winkels en het zwembad op fietsafstand gelegen. Het pand is voorzien van houten vloeren en houten kozijnen, met een originele sfeervol houten plafond. Aan de achterkant van het winkelpand bevindt zich het woongedeelte met aparte keuken en de badkamer is beneden gelegen. En in de ruime tuin met achterom, kunt u bijna de gehele dag genieten van de zon. Op de eerste verdieping bevinden zich 3 zeer ruime slaapkamers met inbouwkasten, dus de woning biedt voldoende ruimte voor een gezin.
We nemen je graag mee door het woon-/winkelpand:
Via de voor entree komt u in de winkelruimte terecht (53,5 m²) met houten vloer en een originele prachtig sfeervolle houten plafond. Aan de achterzijde is nog een extra open kamer gesitueerd, een opbergkast en meterkast. Via het winkelpand kom je in de zeer ruime eet- en woonkamer (43 m²) met laminaat vloer. Het plafond in de woonkamer is verlaagd, maar door de twee lichtkoepels en de grote glazen schuifpui naar de tuin, is er veel lichtinval. De screen die over de gehele schuifpui geplaatst is, houdt de woonkamer aangenaam koel tijdens de warme zomerdagen. De dichte keuken (11 m²) bereik je via de eetkamer. De keuken is voorzien van een wasmachine- en drogeraansluiting, aparte koelkast, 5 pits kooktoestel en mooie grote oven met afzuigkap. Via de keuken kom je in de hal terecht waar het toilet met fonteintje en de badkamer (8 m²) gesitueerd zijn. In de eenvoudige badkamer bevindt zich een bad, inloopdouche, toilet, wastafel, radiator en twee ramen, waarvan een geopend kan worden.
Eerste verdieping:
De eerste verdieping bereik je via de vaste trap gelegen in de woonkamer. Op de ruime overloop (9.5 m²) zijn twee dakramen, bevinden drie zeer ruime slaapkamers (13,5 m², 17 m² en 17,5 m²). De eerste slaapkamer aan de achterzijde heeft een grote inloopkast en is voorzien van een screen. De tweede slaapkamer aan de zijkant van de woning heeft twee dakramen en een vlizotrap naar de zolder. De derde slaapkamer aan de voorzijde is voorzien van een ruime opbergkast.
Tweede verdieping: Zolder te bereiken via vlizotrap.
Tuin:
Via de glazen schuifpui vanuit de woonkamer, kom je in de tuin van 7.5 meter breed en 7.5 meter lang met achterom terecht, welke is gelegen op het zuidwesten. De tuin biedt privacy en heeft een vlonder als terras, waar je heerlijk beschut van het zonnetje kunt genieten.
Bijzonderheden:
- vloeren winkelpand: houten ondervloer met parketvloer
- vloeren woning: houten ondervloer met laminaat, keuken; beton met zeil; 1e verdieping: hout met vloerbedekking
- meterkast: 6 groepen met 2 aardlekschakelaars
- HR-combiketel Intergas 2006 (onderhoud maart 2022)
- energielabel F (geldig tot 5 september 2032)
- ook mogelijkheid om winkel te betrekken bij woongedeelte.
- recht van overpad parkeerplaats (achterliggend voormalig gemeentehuis)
- wonen en winkel. De bestemming ter plaatse betreft gemengd o.a. detailhandel, dienstverlening, kantoor. Voor nadere informatie ruimtelijkeplannen.nl of informeer bij de gemeente Leeuwarden.
- ouderdomsclausule en niet-zelfbewoningsclausule maken onderdeel uit van de koopovereenkomst
- eigendomsoverdracht per direct mogelijk
- eigen grond: 191 m²
Isolatie:
Dubbel glas: deels
Muurisolatie: niet bekend
Vloerisolatie: niet bekend
Dakisolatie: niet bekend
Stiens:
Stiens telt ongeveer 8000 inwoners en ligt in de gemeente Leeuwarden aan de provinciale weg de N357 ten noorden van de stad Leeuwarden. Het dorp heeft een hoog voorzieningen niveau met o.a. winkels (Hema, Kruidvat, Zeeman, Pearle), diverse supermarkten, basisscholen, Sportcentrum ‘It Gryn’ (binnenzwembad, buitenzwembad en sporthallen) sportvelden, cultureel centrum “De Skalm”, kinderboerderij, etc. De bevolking kent een grote verscheidenheid: oud inwoners, nieuwe Friese import en import van elders. Er zijn goede busverbindingen met Leeuwarden.
Afstanden:
Leeuwarden: 7 km
Dokkum: 25 km
Groningen: 80 km
Amsterdam: 142 km
Ameland: 18 km (veerboot)
Aan deze presentatie kunnen geen rechten aan worden ontleend.
Toelichtingsclausule NEN2580.
De Meetinstructie is gebaseerd op de NEN2580. De Meetinstructie is bedoeld om een meer eenduidige manier van meten toe te passen voor het geven van een indicatie van de gebruiksoppervlakte. De Meetinstructie sluit verschillen in meetuitkomsten niet volledig uit, door bijvoorbeeld interpretatieverschillen, afrondingen of beperkingen bij het uitvoeren van de meting.
Interesse?
Heb je interesse in deze woning of wil je een bezichtiging inplannen? Wij helpen je graag."*" geeft vereiste velden aan
Video
WP_Post Object ( [ID] => 30245 [post_author] => 0 [post_date] => 2025-09-11 14:12:06 [post_date_gmt] => 2025-09-11 13:12:06 [post_content] => Video [post_title] => Stiens – Langebuorren 8 – Video [post_excerpt] => Video [post_status] => inherit [comment_status] => closed [ping_status] => closed [post_password] => [post_name] => stiens-langebuorren-8-video [to_ping] => [pinged] => [post_modified] => 2025-09-11 14:12:06 [post_modified_gmt] => 2025-09-11 13:12:06 [post_content_filtered] => [post_parent] => 30201 [guid] => https://www.germeraadmakelaars.nl/bedrijfspand/stiens-langebuorren-8/attachment/stiens-langebuorren-8-video/ [menu_order] => 0 [post_type] => attachment [post_mime_type] => video/mp4 [comment_count] => 0 [filter] => raw )Plattegrond


