Finne 77 – Hallum
Kenmerken
Status
Vraagprijs
Oplevering
Energielabel
Bouwjaar
Inhoud
Woonoppervlakte
Aantal kamers
Aantal slaapkamers
Aantal badkamers
Perceeloppervlakte
Buitenruimte
Ligging tuin
Oppervlakte
Garage
Omschrijving
Welkom in deze leuke tussenwoning! Op een rustige en kindvriendelijke locatie in een gezellige woonwijk van Hallum, nabij de basisschool, staat deze leuke tussenwoning. Deze woning beschikt over maar liefst 4 slaapkamers, een lichte woonkamer met openslaande deuren naar de groene en natuurlijke achtertuin met volop privacy, gelegen op het zuidoosten. Deze woning biedt een uitstekende basis om geheel naar eigen smaak in te richten en is daarmee ideaal voor starters of jonge gezinnen die hun droomwoning willen creëren. Benieuwd naar de mogelijkheden? Maak dan snel een afspraak voor een bezichtiging en ontdek zelf het woongenot van deze fijne woning!
De indeling is als volgt:
Begane grond:
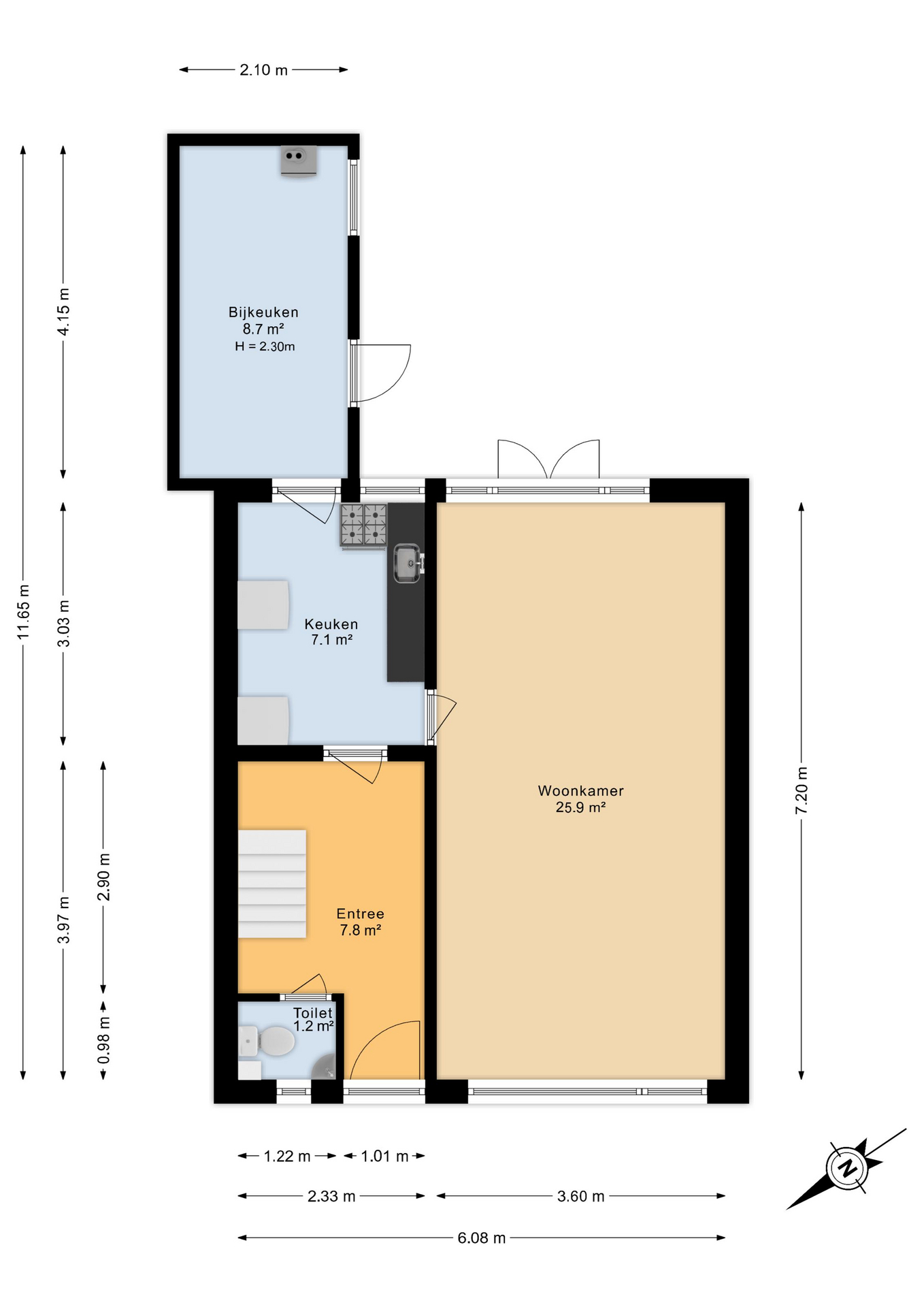
Via de voortuin bereik je de entree van de woning, met trapopgang naar de eerste verdieping, trapkast en geeft toegang tot het toilet en de deur naar de lichte woonkamer. De woonkamer is voorzien van grote raampartijen en geeft toegang tot de achtertuin door de openslaande deuren. De keuken is praktisch ingericht met een keukenblok met vaatwasmachine aansluiting en geeft toegang tot de ruime bijkeuken met wasmachine aansluiting en achtertuin.
Eerste verdieping:
Op de overloop heb je toegang tot drie ruime slaapkamers. De badkamer is praktisch ingericht met een douche, toilet, wastafel en wasmachine aansluiting.
Tweede verdieping:
Via de vaste trap kom je op de ruime overloop met veel opbergruimte, voorzien van de CV installatie en geeft toegang tot de 4e slaapkamer met dakraam.
Tuin:
De beschutte groene achtertuin is voorzien van een nieuwe schutting met een achterom, is geleg
Welkom in deze leuke tussenwoning! Op een rustige en kindvriendelijke locatie in een gezellige woonwijk van Hallum, nabij de basisschool, staat deze leuke tussenwoning. Deze woning beschikt over maar liefst 4 slaapkamers, een lichte woonkamer met openslaande deuren naar de groene en natuurlijke achtertuin met volop privacy, gelegen op het zuidoo
Welkom in deze leuke tussenwoning! Op een rustige en kindvriendelijke locatie in een gezellige woonwijk van Hallum, nabij de basisschool, staat deze leuke tussenwoning. Deze woning beschikt over maar liefst 4 slaapkamers, een lichte woonkamer met openslaande deuren naar de groene en natuurlijke achtertuin met volop privacy, gelegen op het zuidoosten. Deze woning biedt een uitstekende basis om geheel naar eigen smaak in te richten en is daarmee ideaal voor starters of jonge gezinnen die hun droomwoning willen creëren. Benieuwd naar de mogelijkheden? Maak dan snel een afspraak voor een bezichtiging en ontdek zelf het woongenot van deze fijne woning!
De indeling is als volgt:
Begane grond:
Via de voortuin bereik je de entree van de woning, met trapopgang naar de eerste verdieping, trapkast en geeft toegang tot het toilet en de deur naar de lichte woonkamer. De woonkamer is voorzien van grote raampartijen en geeft toegang tot de achtertuin door de openslaande deuren. De keuken is praktisch ingericht met een keukenblok met vaatwasmachine aansluiting en geeft toegang tot de ruime bijkeuken met wasmachine aansluiting en achtertuin.
Eerste verdieping:
Op de overloop heb je toegang tot drie ruime slaapkamers. De badkamer is praktisch ingericht met een douche, toilet, wastafel en wasmachine aansluiting.
Tweede verdieping:
Via de vaste trap kom je op de ruime overloop met veel opbergruimte, voorzien van de CV installatie en geeft toegang tot de 4e slaapkamer met dakraam.
Tuin:
De beschutte groene achtertuin is voorzien van een nieuwe schutting met een achterom, is gelegen op het zuidoosten en biedt volop privacy. De voortuin is tevens voorzien van veel groen en er zijn openbare parkeermogelijkheden tegenover de woning.
Bijzonderheden:
- begane grond houten vloer en deels beton, 1e verdieping: houten vloer met vloerbedekking en laminaat, 2e verdieping: beton
- HR-combiketel, Intergas 2019 (eigendom) voor verwarming en warmwatervoorziening
- meterkast: 4 groepen
- aangesloten op het riool
- energielabel C (geldig tot 07-10-2035)
- schilderwerk buitenom 2023 (beneden gedeeltelijk) 2024 (boven geheel)
- nieuwe schutting met achterom
- ouderdomsclausule en asbestclausule maken onderdeel uit van de koopovereenkomst
- eigendomsoverdracht in overleg
- eigen grond: 127 m²
Isolatie:
Dubbel glas: ja
Vloerisolatie: ja
Muurisolatie: nee
Dakisolatie: nee
Hallum:
Hallum is het grootste dorp van de voormalige gemeente Ferwerderadiel en is nu onderdeel van de gemeente Noard East Fryslan met zo'n 3.000 inwoners. Het is deels een forenzendorp. Niet alleen nu, maar ook vroeger trok Hallum al veel mensen aan, getuige het vroegere nabijgelegen klooster Mariëngaarde. Hallum voorziet u van alle dagelijkse behoeften: er zijn twee garages, pompstation, postagentschap, pinautomaat , supermarkt, slager, bakker, en chinees in het dorp aanwezig. Voor de kinderen zijn er 2 basisscholen en er is een dierenpark met speeltuin. De bekende ‘grootbakkers’, Hellema en Van der Meulen, bieden veel werkgelegenheid aan de mensen in de omgeving. Ook zijn er voldoende verenigingen en sportaccommodaties in Hallum, te weten een openlucht zwembad, sportvelden, tennisbanen en een multifunctioneel centrum waar zaalsporten uitgeoefend kunnen worden. Het dorp is gelegen aan open vaarwater met een jachthaven die via de Hallumervaart in directe verbinding staat met de Dokkumer Ee (Elfsteden route). Aan dit vaarwater aan de zuidkant van Hallum ligt het nieuwbouwplan “Oer de Feart”. Hallum heeft goede busverbindingen met Stiens, Leeuwarden en Dokkum. http://www.hallumonline.nl
Afstanden:
Stiens: 5 km
Sint Annaparochie: 13 km
Holwerd: 12 km (veerboot naar Ameland)
Leeuwarden: 15 km
Dokkum: 18 km
Groningen: 80 km
Amsterdam: 150 km
Aan deze presentatie kunnen geen rechten aan worden ontleend.
Deze informatie is door ons met de nodige zorgvuldigheid samengesteld, veelal aan de hand van de door verkoper aan ons ter hand gestelde gegevens en tekeningen. Onzerzijds wordt echter geen enkele aansprakelijkheid aanvaard voor enige onvolledigheid, onjuistheid of anderszins, dan wel de gevolgen daarvan. Dit geldt voor onder meer de opgegeven maten, oppervlakten, isolatie en ouderdom van technische installaties.
Toelichtingsclausule NEN2580.
De Meetinstructie is gebaseerd op de NEN2580. De Meetinstructie is bedoeld om een meer eenduidige manier van meten toe te passen voor het geven van een indicatie van de gebruiksoppervlakte. De Meetinstructie sluit verschillen in meetuitkomsten niet volledig uit, door bijvoorbeeld interpretatieverschillen, afrondingen of beperkingen bij het uitvoeren van de meting.
Interesse?
Heb je interesse in deze woning of wil je een bezichtiging inplannen? Wij helpen je graag."*" geeft vereiste velden aan
Video
Plattegrond







