Orxmasingel 132 – Menaam
Kenmerken
Status
Vraagprijs
Oplevering
Energielabel
Bouwjaar
Inhoud
Woonoppervlakte
Aantal kamers
Aantal slaapkamers
Aantal badkamers
Perceeloppervlakte
Buitenruimte
Ligging tuin
Oppervlakte
Garage
Omschrijving
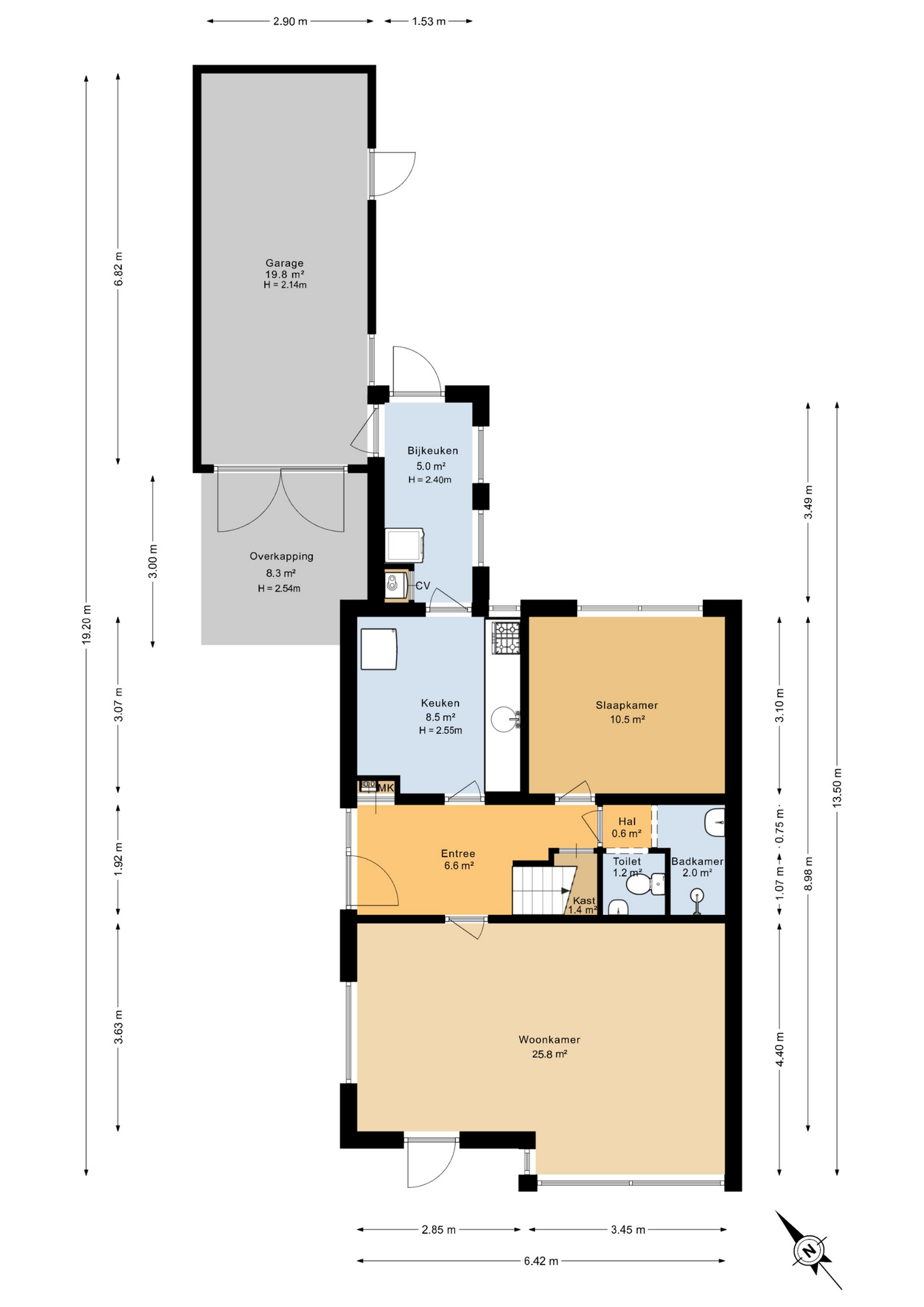
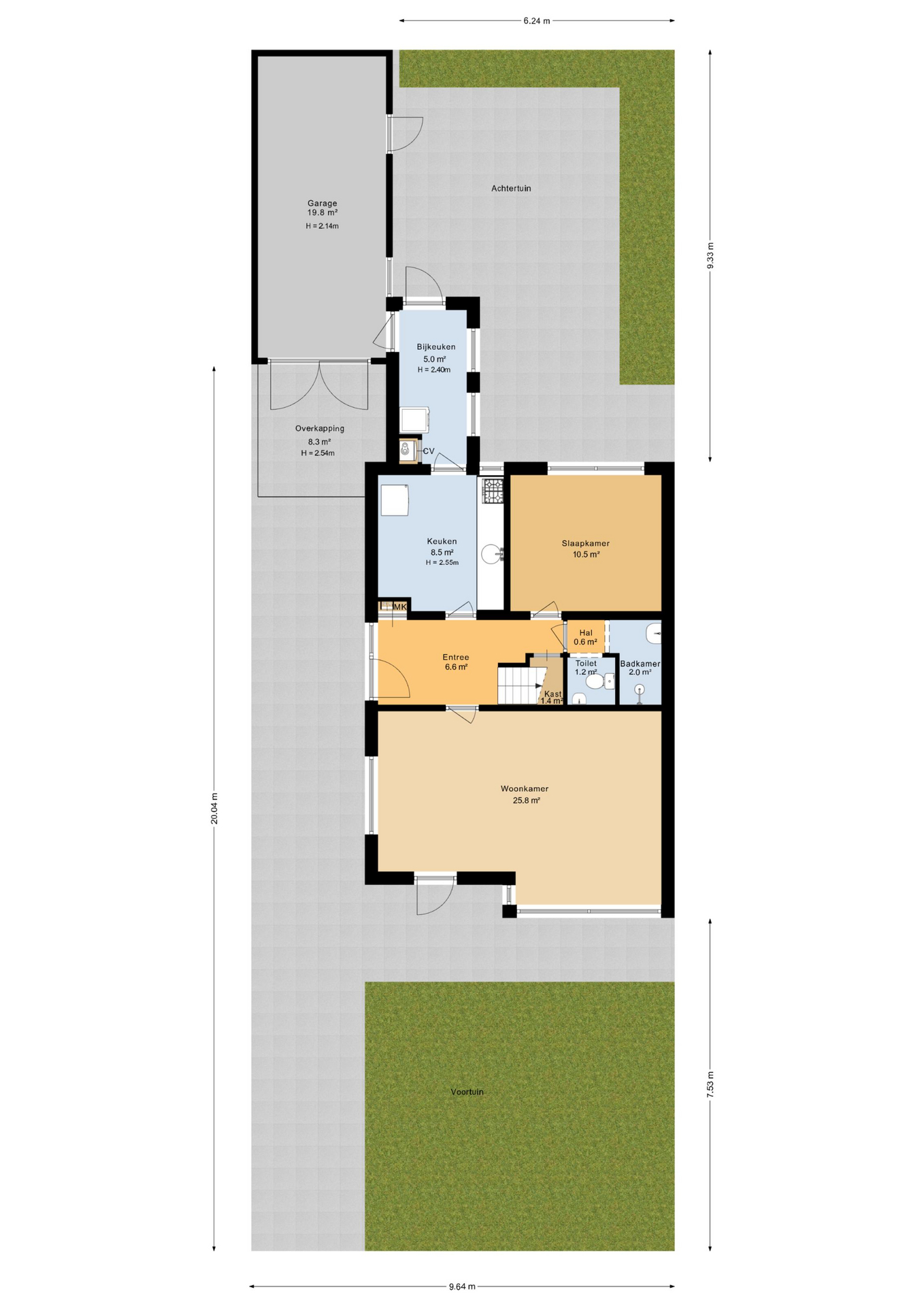
In het fijne en rustige Menaam staat deze leuke twee-onder-een-kapwoning met garage te koop aan de Orxmasingel 132. Een praktisch en levensloopbestendig ingedeelde woning met maar liefst 106 m² woonoppervlak, drie slaapkamers en een garage. Met een gedeelde oprit, eigen carport, een royale garage van circa 20 m² en een achtertuin op het noordoosten vlakbij de ijsbaan én een bushalte, is dit een plek waar je comfortabel woont met volop ruimte en gemak.
BEGANE GROND
Via de groene voortuin en de gedeelde oprit bereik je de woning én de garage, die tevens ideaal is als achterom. Binnenkomend in de ruime, lichte hal valt direct de prettige indeling op. Vanuit hier heb je toegang tot de dichte keuken aan de linkerzijde en de woonkamer aan de rechterzijde.
De woonkamer is heerlijk licht dankzij de grote raampartijen en is gunstig gelegen op het zuidwesten. Extra praktisch: vanuit de woonkamer is er ook een deur naar de voortuin, waardoor je gemakkelijk even buiten stapt. Aan de achterzijde van de woning bevindt zich de slaapkamer op de begane grond, met daarnaast het toilet en de badkamer. Dit maakt de woning bij uitstek geschikt voor gelijkvloers wonen.
De dichte keuken is ruim opgezet en staat in directe verbinding met de bijkeuken. Hier vind je de witgoedaansluitingen en deze ruimte is voorzien van vloerverwarming, wat het een comfortabele ruimte maakt. Vanuit de bijkeuken is er toegang tot zowel de garage als de achtertuin.
EERSTE VERDIEPING
Op de eerste verdieping kom je op een ruime en lichte overloop met toegang tot twee ruime slaapkamers, beide aan de voorzijde van de woning
In het fijne en rustige Menaam staat deze leuke twee-onder-een-kapwoning met garage te koop aan de Orxmasingel 132. Een praktisch en levensloopbestendig ingedeelde woning met maar liefst 106 m² woonoppervlak, drie slaapkamers en een garage. Met een gedeelde oprit, eigen carport, een royale garage van circa 20 m² en een achtertuin op het noordo
In het fijne en rustige Menaam staat deze leuke twee-onder-een-kapwoning met garage te koop aan de Orxmasingel 132. Een praktisch en levensloopbestendig ingedeelde woning met maar liefst 106 m² woonoppervlak, drie slaapkamers en een garage. Met een gedeelde oprit, eigen carport, een royale garage van circa 20 m² en een achtertuin op het noordoosten vlakbij de ijsbaan én een bushalte, is dit een plek waar je comfortabel woont met volop ruimte en gemak.
BEGANE GROND
Via de groene voortuin en de gedeelde oprit bereik je de woning én de garage, die tevens ideaal is als achterom. Binnenkomend in de ruime, lichte hal valt direct de prettige indeling op. Vanuit hier heb je toegang tot de dichte keuken aan de linkerzijde en de woonkamer aan de rechterzijde.
De woonkamer is heerlijk licht dankzij de grote raampartijen en is gunstig gelegen op het zuidwesten. Extra praktisch: vanuit de woonkamer is er ook een deur naar de voortuin, waardoor je gemakkelijk even buiten stapt. Aan de achterzijde van de woning bevindt zich de slaapkamer op de begane grond, met daarnaast het toilet en de badkamer. Dit maakt de woning bij uitstek geschikt voor gelijkvloers wonen.
De dichte keuken is ruim opgezet en staat in directe verbinding met de bijkeuken. Hier vind je de witgoedaansluitingen en deze ruimte is voorzien van vloerverwarming, wat het een comfortabele ruimte maakt. Vanuit de bijkeuken is er toegang tot zowel de garage als de achtertuin.
EERSTE VERDIEPING
Op de eerste verdieping kom je op een ruime en lichte overloop met toegang tot twee ruime slaapkamers, beide aan de voorzijde van de woning. De overloop biedt bovendien mogelijkheden om een deel naar eigen wens in te richten, bijvoorbeeld als werkplek of extra bergruimte.
GARAGE, CARPORT EN TUIN
De woning beschikt over een grote garage van circa 20 m², ideaal voor hobby, opslag of het stallen van fietsen. Daarnaast is er een eigen carport. De achtertuin is gelegen op het noordoosten is ook bereikbaar via de garage.
OMGEVING
De Orxmasingel is een rustige straat in het gemoedelijke dorp Menaam, met veel groen en een prettige woonomgeving. De ligging aan de rand van de ijsbaan geeft net dat beetje extra ruimte en vrijheid. Voor dagelijkse voorzieningen kun je terecht in het dorp zelf en dankzij de bushalte op slechts een paar minuten lopen zijn ook omliggende plaatsen en Leeuwarden goed bereikbaar. Een fijne plek voor wie rustig wil wonen, maar wel met goede verbindingen in de buurt.
BIJZONDERHEDEN
+ 106 m2 woonoppervlak;
+ Levensloopbestendig;
+ 3 slaapkamers;
+ Energielabel D;
+ Gedeelde oprit met eigen garage;
+ Fijne ligging.
Disclaimer
Deze informatie is door ons met de nodige zorgvuldigheid samengesteld. Onzerzijds wordt echter geen enkele aansprakelijkheid aanvaard voor enige onvolledigheid, onjuistheid of anderszins, dan wel de gevolgen daarvan. Alle opgegeven maten en oppervlakten zijn indicatief.
Toelichtingsclausule NEN2580
De Meetinstructie is gebaseerd op de NEN2580. De Meetinstructie is bedoeld om een meer eenduidige manier van meten toe te passen voor het geven van een indicatie van de gebruiksoppervlakte. De Meetinstructie sluit verschillen in meetuitkomsten niet volledig uit, door bijvoorbeeld interpretatieverschillen, afrondingen of beperkingen bij het uitvoeren van de meting.
Interesse?
Heb je interesse in deze woning of wil je een bezichtiging inplannen? Wij helpen je graag."*" geeft vereiste velden aan
Plattegrond










