Binnenbuorren 9 – Marsum
Kenmerken
Status
Vraagprijs
Oplevering
Energielabel
Bouwjaar
Inhoud
Woonoppervlakte
Aantal kamers
Aantal slaapkamers
Aantal badkamers
Perceeloppervlakte
Buitenruimte
Ligging tuin
Oppervlakte
Garage
Omschrijving
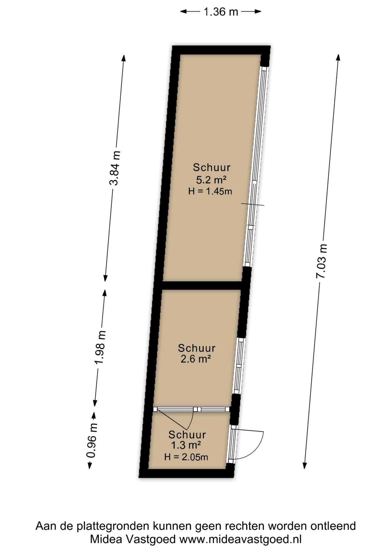
Rustig idyllisch wonen met volop privacy in de dorpskern van Marsum! De woning staat op een perceel van meer dan 860 m², met veel groen, een garage met eigen oprit en een ruim klushok, ideaal voor werkruimte, hobby's of opslag. Kortom: De perfecte plek voor de klusser of ZZP-er die dichtbij de stad wil wonen, maar tevens als natuurliefhebber zit je hier uitstekend op je plek. De buitenzijde van de woning is uitstekend onderhouden, de binnenzijde verdient het om te worden omgevormd tot een heerlijke gezinswoning. Levensloopbestendig wonen of kantoor aan huis behoort hier zeker tot de mogelijkheden. Maar eerlijk gezegd, moet je deze woning zelf bezichtigen om het fijne gevoel te ervaren!
Begane grond
De ruime entreehal met een schuifpui naar de achtertuin, geeft toegang tot de keuken, woonkamer, toilet, doucheruimte met wastafel en bijkeuken. De dichte keuken is zeer ruim en er staat een enigzins gedateerde keuken met oven, koelkast, 4 pits gaskookplaat en wordt verwarmd dmv een gaskachel. De naastgelegen authentieke woonkamer is tevens voorzien van een gaskachel, opbergkast en balken plafond. De bijkeuken leidt je naar de slaapkamer / kantoorruimte beneden.
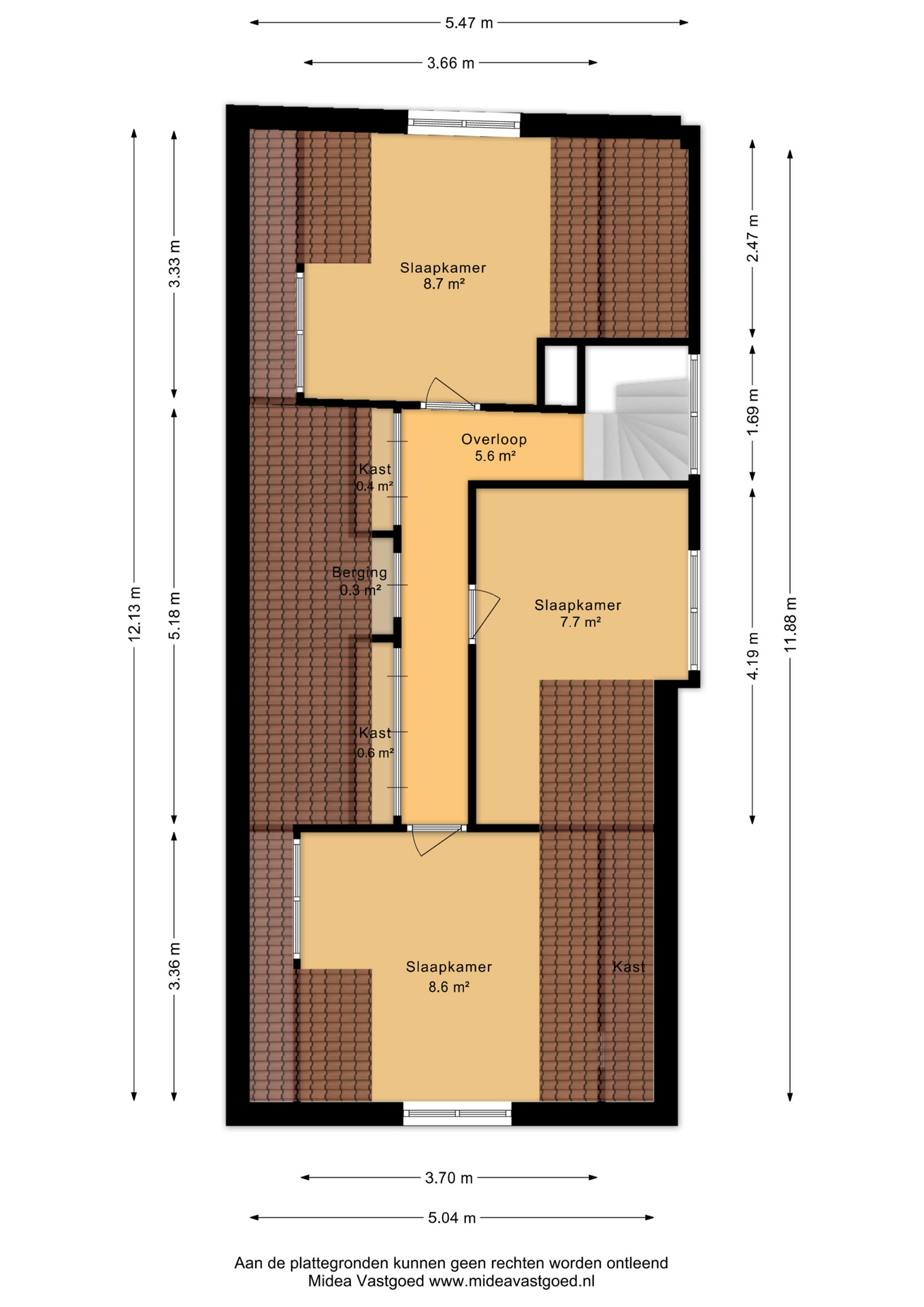
Eerste verdieping
De overloop heeft veel opbergruimte door middel van inbouwkasten en geeft toegang tot gezellige 3 slaapkamers, die allen voorzien zijn van extra dikke beglazing.
Tuin;
Achter de woning ligt een fraai aangelegde ruime tuin van meer dan 700 m², die privacy en sfeer perfect combineert. Het ruime beschutte terras is ideaal voor lange zomeravonden en gezellige momenten met familie en vrienden. De tuin kenmerkt zich
Rustig idyllisch wonen met volop privacy in de dorpskern van Marsum! De woning staat op een perceel van meer dan 860 m², met veel groen, een garage met eigen oprit en een ruim klushok, ideaal voor werkruimte, hobby's of opslag. Kortom: De perfecte plek voor de klusser of ZZP-er die dichtbij de stad wil wonen, maar tevens als natuurliefhebber zi
Rustig idyllisch wonen met volop privacy in de dorpskern van Marsum! De woning staat op een perceel van meer dan 860 m², met veel groen, een garage met eigen oprit en een ruim klushok, ideaal voor werkruimte, hobby's of opslag. Kortom: De perfecte plek voor de klusser of ZZP-er die dichtbij de stad wil wonen, maar tevens als natuurliefhebber zit je hier uitstekend op je plek. De buitenzijde van de woning is uitstekend onderhouden, de binnenzijde verdient het om te worden omgevormd tot een heerlijke gezinswoning. Levensloopbestendig wonen of kantoor aan huis behoort hier zeker tot de mogelijkheden. Maar eerlijk gezegd, moet je deze woning zelf bezichtigen om het fijne gevoel te ervaren!
Begane grond
De ruime entreehal met een schuifpui naar de achtertuin, geeft toegang tot de keuken, woonkamer, toilet, doucheruimte met wastafel en bijkeuken. De dichte keuken is zeer ruim en er staat een enigzins gedateerde keuken met oven, koelkast, 4 pits gaskookplaat en wordt verwarmd dmv een gaskachel. De naastgelegen authentieke woonkamer is tevens voorzien van een gaskachel, opbergkast en balken plafond. De bijkeuken leidt je naar de slaapkamer / kantoorruimte beneden.
Eerste verdieping
De overloop heeft veel opbergruimte door middel van inbouwkasten en geeft toegang tot gezellige 3 slaapkamers, die allen voorzien zijn van extra dikke beglazing.
Tuin;
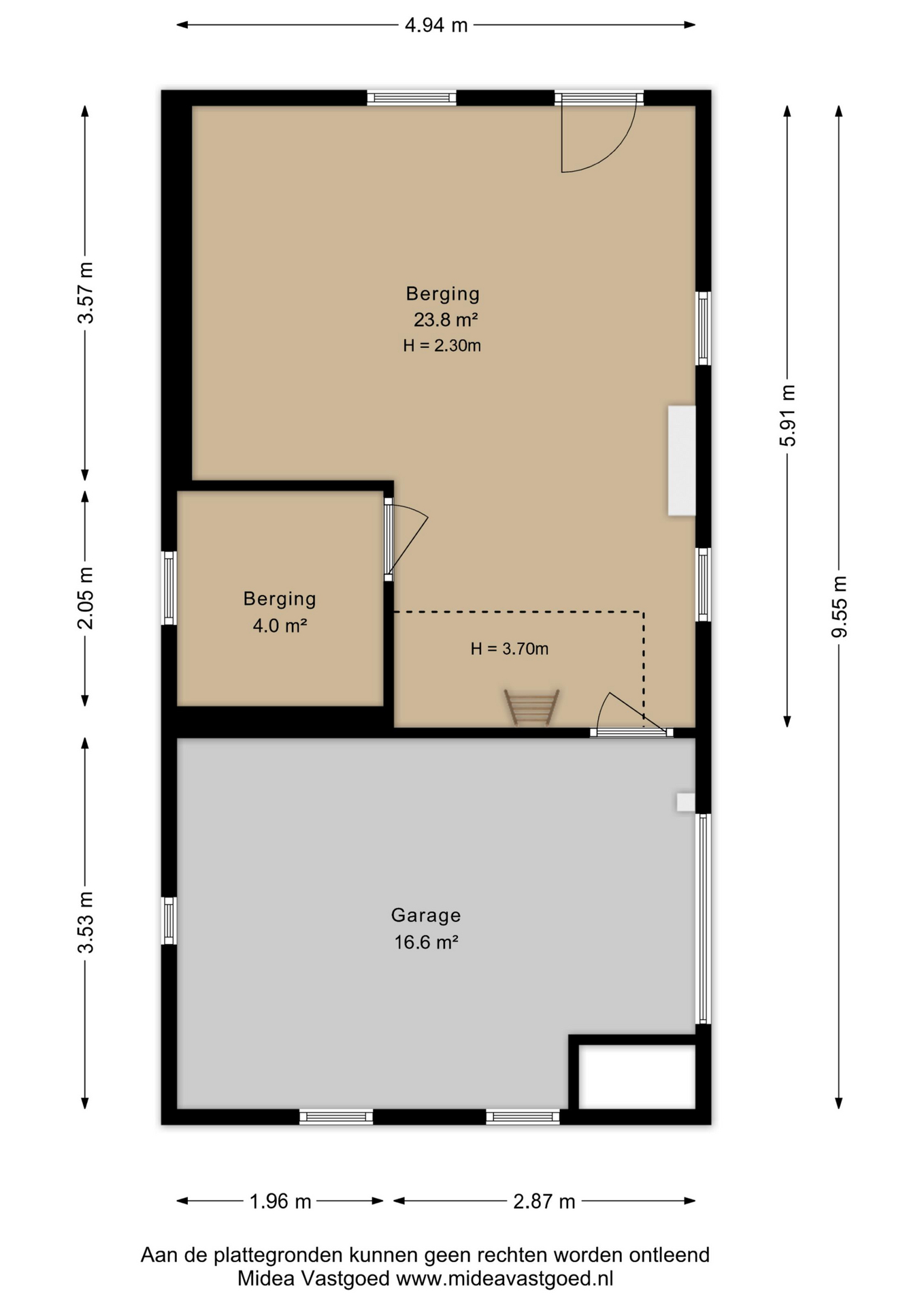
Achter de woning ligt een fraai aangelegde ruime tuin van meer dan 700 m², die privacy en sfeer perfect combineert. Het ruime beschutte terras is ideaal voor lange zomeravonden en gezellige momenten met familie en vrienden. De tuin kenmerkt zich door prachtige beplanting en veel groen, die het geheel een verzorgde en harmonieuze uitstraling geeft. Het aanwezige dierenverblijf is ook op zoek naar nieuwe bewoners, zoals kippen of konijnen. Voor de fervente hobbyist, klusser of ZZP-er is er een zeer ruim stenen klusruimte met werkbank aanwezig voorzien van elektra en een opbergzolder. De aangrenzende garage met oprit biedt plaats voor een auto op eigen terrein.
Bijzonderheden:
- Begane grond: deels beton en houten vloer, 1e verdieping: houten vloer
- CV ketel, 2021 merk Intergas (huur) voor warm watervoorziening
- Verwarming d.m.v. gaskachels
- 2 zonnepanelen (2003) functionaliteit niet bekend
- Aanwezigheid van septic tank met overloop naar riool
- Schilderwerk buitenom voorzijde 2025 / overig 2024
- Beschermd stads- of dorpsgezicht
- Energielabel F (geldig t/m 20 februari 2036)
- Asbestclausule, ouderdomsclausule en niet-zelfbewoningsclausule worden opgenomen in de koopovereenkomst
- Eigen grond: 863 m²
- Eigendomsoverdracht in overleg
Isolatie:
Beglazing: deels enkel / dubbel
Muurisolatie: nee
Vloerisolatie: nee
Dakisolatie: ja
Marsum:
Marsum is een dorp in de gemeente Waadhoeke. Het ligt ten westen van Leeuwarden, ten noorden van Deinum en ten zuidoosten van Menaam en heeft ongeveer 1020 inwoners. In het dorp bevindt zich het Poptaslot, een stins die ook wel Heringastate wordt genoemd. Marsum ligt op fietsafstand van Leeuwarden en dicht bij uitvalswegen richting Harlingen, Drachten en Heerenveen. Het winkelaanbod voorziet u in de eerste levensbehoeften, zo heeft het dorp onder andere een bakker, elke woensdag een groentekraam en een tuincentrum. Verder zijn er in Marsum tal van verenigingen actief, zoals een voetbal-, kaats-, biljart-, tennis- en gymnastiekvereniging. Ook is er een basisschool in het dorp.
Afstanden:
Leeuwarden: < 5 km
Harlingen: 23 km
Heerenveen: 35 km
Drachten: 35 km
Aan deze presentatie kunnen geen rechten aan worden ontleend. Deze informatie is door ons met de nodige zorgvuldigheid samengesteld, veelal aan de hand van de door verkoper aan ons ter hand gestelde gegevens en tekeningen. Onzerzijds wordt echter geen enkele aansprakelijkheid aanvaard voor enige onvolledigheid, onjuistheid of anderszins, dan wel de gevolgen daarvan. Dit geldt voor onder meer de opgegeven maten, oppervlakten, isolatie en ouderdom van technische installaties.
Toelichtingsclausule NEN2580.
De Meetinstructie is gebaseerd op de NEN2580. De Meetinstructie is bedoeld om een meer eenduidige manier van meten toe te passen voor het geven van een indicatie van de gebruiksoppervlakte. De Meetinstructie sluit verschillen in meetuitkomsten niet volledig uit, door bijvoorbeeld interpretatieverschillen, afrondingen of beperkingen bij het uitvoeren van de meting.
Interesse?
Heb je interesse in deze woning of wil je een bezichtiging inplannen? Wij helpen je graag."*" geeft vereiste velden aan
Video
Plattegrond











